.background-image, .breadcrumbs, .floor-plan-pill, .floor-plan-swiper-thumbnails, .floor-plan-swiper .swiper-button-prev, .floor-plan-swiper .swiper-button-next, .related-plans-block, .btn, .post-navigation, .cta-block { display: none !important; }
Skip to main content Skip to footer content
Cape Cod style modular home by Wisconsin Homes in Marshfield, WI with gray siding and attached garage.

3550 Telmark

3 Bed
3 Bath
1,868 Sq. Ft.
Print Friendly and PDF

Amenities are included throughout this graceful charmer. The entrance features an open foyer and spacious living room. From there, stairs lead you upstairs or you can continue straight ahead to an openly designed dining room/kitchen combination. The primary bedroom includes a long walk-in closet and a primary bath which includes a soaking tub, standing shower, double sinks and linen closet. The lower level is rounded off by garage access met with a linen closet and a bathroom for convenience. Upstairs you find two bedrooms on each side of a versatile loft area and another full bath. Dormers complete this home, giving the second level added space and charm.

Disclaimer: Artist rendering may include optional or upgraded features.

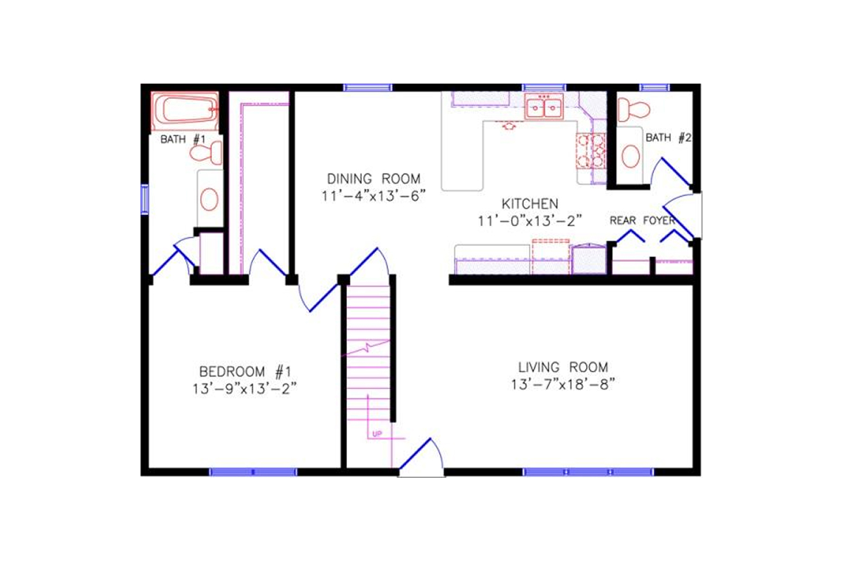
3550 Telmark Colonial floor plan
Main Floor
3550 Telmark Colonial floor plan upper level
Upper Level
3550 Telmark Colonial floor plan alternate plan 2 lower
Main Floor Alt. Plan-3540 TELMARK 28' x 50' | 1400 Sq Ft
3550 Telmark Colonial floor plan alternate plan 2 upper
Upper Level Alt. Plan-3540 TELMARK 28' x 50' | 1400 Sq Ft

Plan Details

Bedrooms
3
Bathrooms
3
Main Floor Square Feet
1,120
Upper Square Feet
748
Total Square Feet
1,868
Main Floor Dimensions
28' X 40'
Upper Floor Dimensions
28' X 40'
Stories
2
Style
Cape Cod

Customize Your Dream Home

Creating your dream home shouldn’t be complicated. At Wisconsin Homes, our Home Design Center streamlines everything, from plan selection to building options and final drawings, so you can focus on what matters: designing a home you’ll love.

Request a Free Quote

Your dream home starts with the right team. Wisconsin Homes partners with experienced builders across the Midwest who share our commitment to quality craftsmanship and customer care. Contact one of our local builders for your free quote.

Previous Plan

Start Your Dream Home Today

Whether you have a clear vision or you’re just starting to explore your options, we’re here to make the process easy—and even enjoyable. From personalized floor plans to trusted builders that truly care, we’ll help you build your dream home at a guaranteed factory-built price.

Connect with a Local Builder