.background-image, .breadcrumbs, .floor-plan-pill, .floor-plan-swiper-thumbnails, .floor-plan-swiper .swiper-button-prev, .floor-plan-swiper .swiper-button-next, .related-plans-block, .btn, .post-navigation, .cta-block { display: none !important; }
Skip to main content Skip to footer content
Wisconsin Homes office exterior

Visit Our Model Homes

Experience the Quality Firsthand

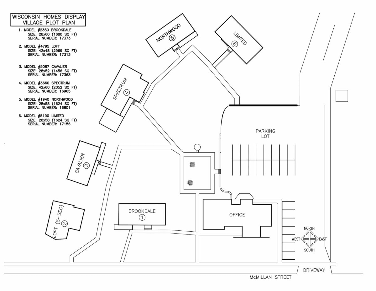
425 West McMillan Marshfield, WI

Office:  (715) 384-2161

Walk through our beautifully finished model homes and see the difference that precision craftsmanship makes. We have homes of various sizes and styles to help you design one that fits your lifestyle. Every detail reflects the quality and care that define Wisconsin Homes.

Stop by during office hours, 8 am – 5 pm, Monday through Friday. You can also view the models after hours or on weekends by obtaining a key from any of our builders or by calling our receptionist. Step inside and imagine your family living here—comfortably and beautifully.

Wisconsin Homes office exterior
Ranch-style modular home with navy blue siding, gable porch entry, and attached garage by Wisconsin Homes.

1 Brookdale

2 Bed 2 Bath 1,680 Sq. Ft.
View Model Home
Chalet style modular home with green siding and black roof built by Wisconsin Homes.

2 Loft

3 Bed 3 Bath 2,969 Sq. Ft.
View Model Home
Ranch-style modular home with gray siding, front porch, and attached garage by Wisconsin Homes.

3 Cavalier

3 Bed 2 Bath 1,456 Sq. Ft.
View Model Home
Modern white ranch-style home with black trim, large black windows, a covered porch, stone accents, and colorful front landscaping on a well-kept lawn.

4 Spectrum

3 Bed 3 Bath 2,052 Sq. Ft.
View Model Home
Beige ranch-style modular home with covered entry and attached two-car garage by Wisconsin Homes.

5 Northwood

2 Bed 2 Bath 1,624 Sq. Ft.
View Model Home
5190 Limited Ranch floor plan

6 Limited

3 Bed 2 Bath 1,624 Sq. Ft.
View Model Home
Red ranch-style modular home with gabled front entry, tan shutters, and attached garage by Wisconsin Homes.

Brookdale (Previous Display)

2 Bed 2 Bath 1,680 Sq. Ft.
View Model Home
Gray ranch-style modular home with white trim, front porch, and attached garage by Wisconsin Homes.

Cavalier (Previous Display)

3 Bed 2 Bath 1,653 Sq. Ft.
View Model Home
Dark gray ranch-style modular home with white trim, front steps, and gable roof by Wisconsin Homes.

Limited (Previous Display)

3 Bed 2 Bath 1,704 Sq. Ft.
View Model Home
Cedar cottage-style home by Wisconsin Homes with a wraparound wood deck, large windows, and manicured lawn.

Lakewood Plus (Previous Display)

3 Bed 2 Bath 2,098 Sq. Ft.
View Model Home
Light gray ranch-style modular home with covered front porch and two-car garage by Wisconsin Homes.

Brookdale (Previous Display)

3 Bed 2 Bath 1,792 Sq. Ft.
View Model Home
Log cabin-style chalet modular home by Wisconsin Homes with expansive windows, green shingle roof, and a full wraparound wooden deck surrounded by trees.

Loft (Previous Display)

2 Bed 3 Bath 2,753 Sq. Ft.
View Model Home