.background-image, .breadcrumbs, .floor-plan-pill, .floor-plan-swiper-thumbnails, .floor-plan-swiper .swiper-button-prev, .floor-plan-swiper .swiper-button-next, .related-plans-block, .btn, .post-navigation, .cta-block { display: none !important; }
Skip to main content Skip to footer content
Wood-tone Cape Cod modular home by Wisconsin Homes in Marshfield, WI with front porch and landscaped yard.

3590 Telmark

3 Bed
3 Bath
2,367 Sq. Ft.

Functionality is evident in this large, elegant, three bedroom home. A large open foyer welcomes you into a home where living areas are well-proportioned for any size family. The generous primary bedroom is equipped with a dual entrance walk-in closet and the primary bath includes double sinks, a standing shower and soaking tub. There is an abundance of kitchen space for the serious chef and a convenient first floor laundry/utility room. Upstairs you’ll enjoy a spacious loft, two bedrooms with ample closet space and a full bath. An optional covered front porch makes this home a favorite.

Download PDF

Disclaimer: Artist rendering may include optional or upgraded features.

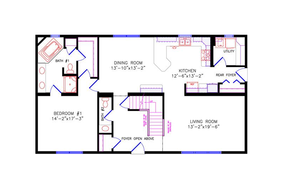
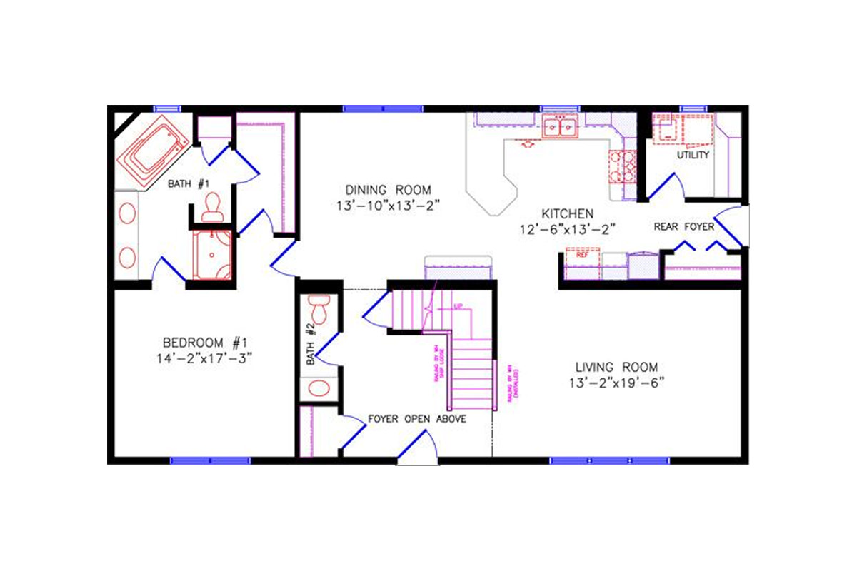
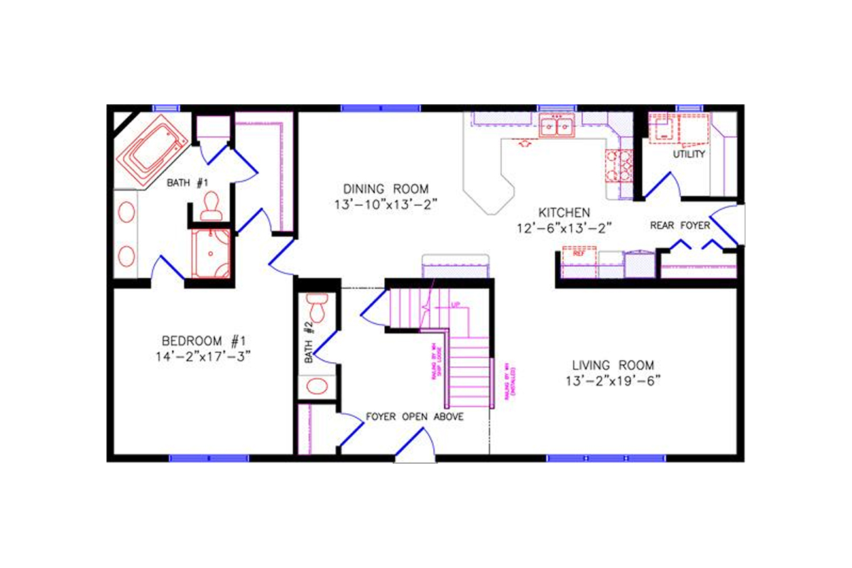
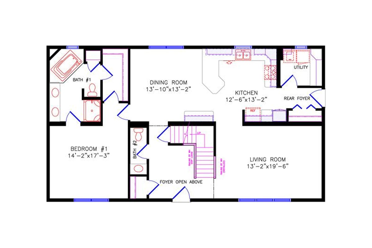
3590 Telmark Colonial floor plan
Main Floor
3570 Telmark Colonial floor plan upper level
Upper Floor

Plan Details

Bedrooms
3
Bathrooms
3
Main Floor Square Feet
1,400
Upper Square Feet
967
Total Square Feet
2,367
Main Floor Dimensions
28' X 50'
Upper Floor Dimensions
28' X 50'
Stories
2
Style
Cape Cod

Customize Your Dream Home

Creating your dream home shouldn’t be complicated. At Wisconsin Homes, our Home Design Center streamlines everything, from plan selection to building options and final drawings, so you can focus on what matters: designing a home you’ll love.

Request a Free Quote

Your dream home starts with the right team. Wisconsin Homes partners with experienced builders across the Midwest who share our commitment to quality craftsmanship and customer care. Contact one of our local builders for your free quote.

Next Plan

Start Your Dream Home Today

Whether you have a clear vision or you’re just starting to explore your options, we’re here to make the process easy—and even enjoyable. From personalized floor plans to trusted builders that truly care, we’ll help you build your dream home at a guaranteed factory-built price.

Connect with a Local Builder