.background-image, .breadcrumbs, .floor-plan-pill, .floor-plan-swiper-thumbnails, .floor-plan-swiper .swiper-button-prev, .floor-plan-swiper .swiper-button-next, .related-plans-block, .btn, .post-navigation, .cta-block { display: none !important; }
Skip to main content Skip to footer content
Modern brown cabin-style home with a steep roofline, large triangular windows, a wraparound deck with black railings, and colorful flower beds surrounded by trees.

4710 Loft

2 Bed
1 Bath
1,641 Sq. Ft.

Explore the flexible living space of the loft. A wall of light and windows creates a bright and airy feel accented by the cathedral ceiling. Two first floor bedrooms feature large closets. A full bath and large utility room are central and handy. Climb the stairs to a spacious loft that overlooks the kitchen, living and dining areas. Built rock solid and engineered for quality throughout. The loft is the haven you’ve dreamed about.

Download PDF

Disclaimer: Artist rendering may include optional or upgraded features.

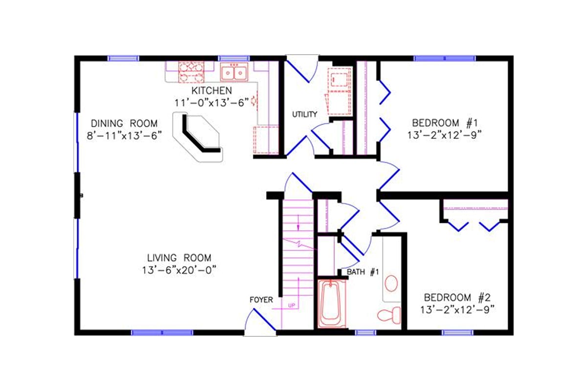
4710 Loft Chalet floor plan
Main Floor
4710 Loft Chalet floor plan upper level
Upper Floor

Plan Details

Bedrooms
2
Bathrooms
1
Main Floor Square Feet
1,232
Upper Square Feet
409
Total Square Feet
1,641
Main Floor Dimensions
28' X 44'
Upper Floor Dimensions
28' X 44'
Stories
2
Style
Chalet

Customize Your Dream Home

Creating your dream home shouldn’t be complicated. At Wisconsin Homes, our Home Design Center streamlines everything, from plan selection to building options and final drawings, so you can focus on what matters: designing a home you’ll love.

Request a Free Quote

Your dream home starts with the right team. Wisconsin Homes partners with experienced builders across the Midwest who share our commitment to quality craftsmanship and customer care. Contact one of our local builders for your free quote.

Previous Plan

Start Your Dream Home Today

Whether you have a clear vision or you’re just starting to explore your options, we’re here to make the process easy—and even enjoyable. From personalized floor plans to trusted builders that truly care, we’ll help you build your dream home at a guaranteed factory-built price.

Connect with a Local Builder