.background-image, .breadcrumbs, .floor-plan-pill, .floor-plan-swiper-thumbnails, .floor-plan-swiper .swiper-button-prev, .floor-plan-swiper .swiper-button-next, .related-plans-block, .btn, .post-navigation, .cta-block { display: none !important; }
Skip to main content Skip to footer content
Light gray Colonial-style modular home by Wisconsin Homes in Marshfield, WI with covered porch and attached garage.

3060 Mapleton

5 Bed
3 Bath
2,552 Sq. Ft.
Print Friendly and PDF

Disclaimer: Artist rendering may include optional or upgraded features.

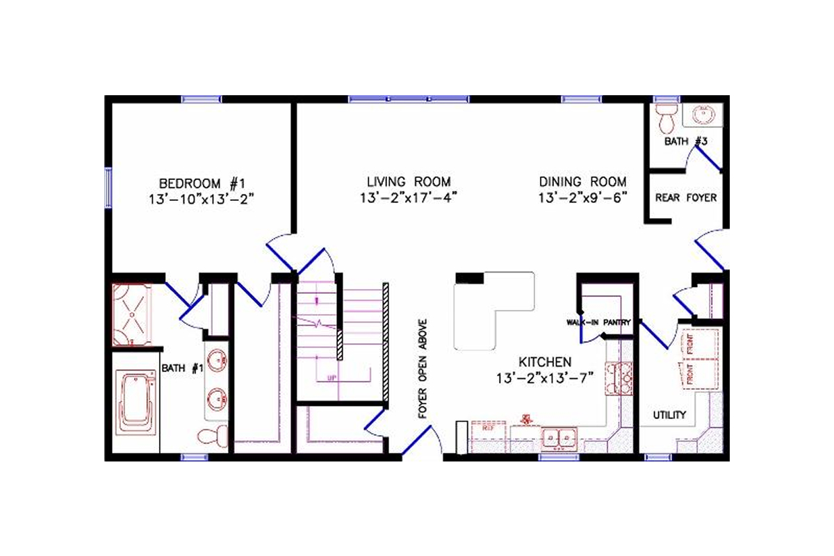
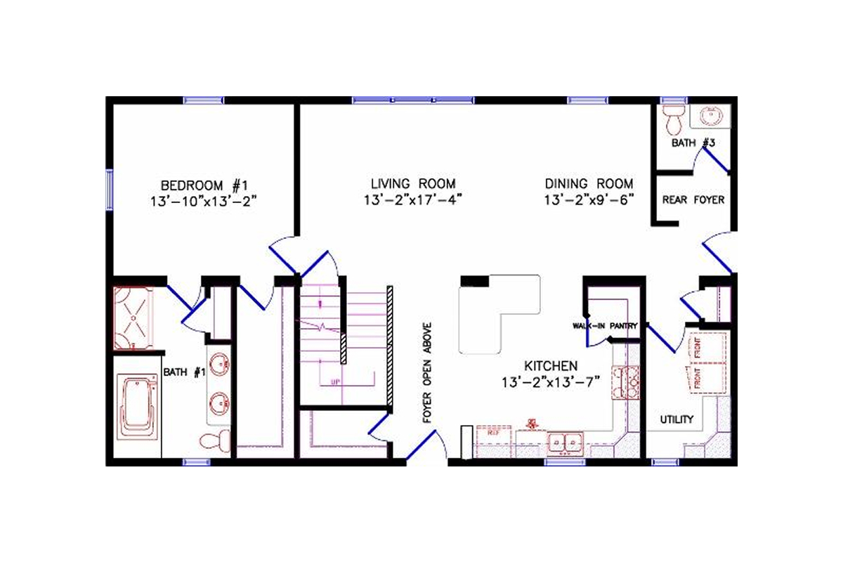
3060 Mapleton Colonial floor plan
Main Floor
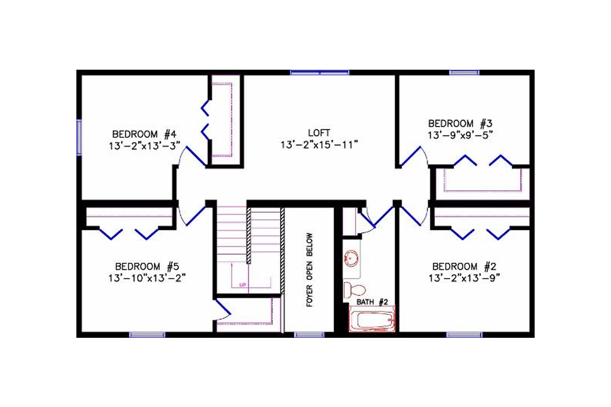
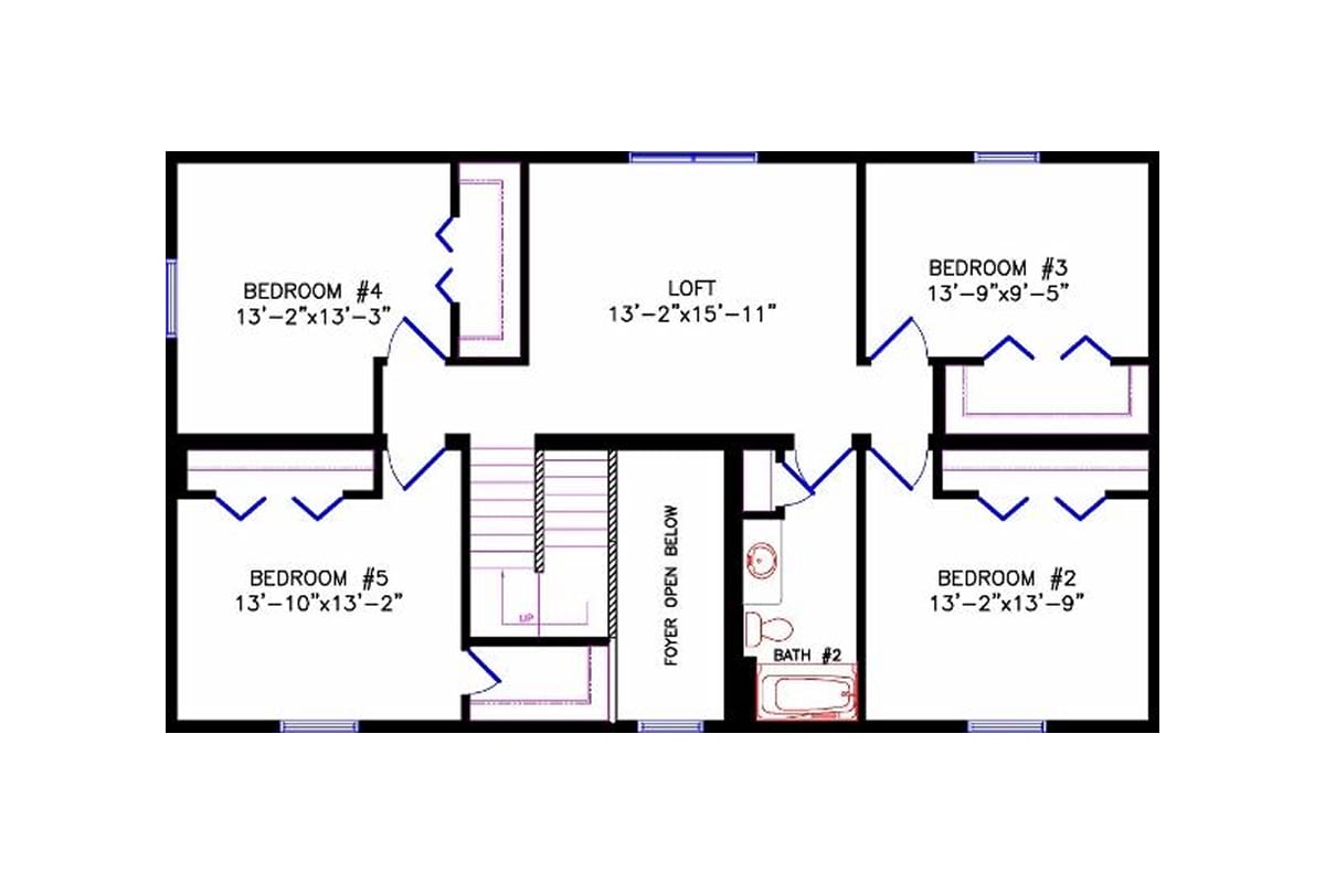
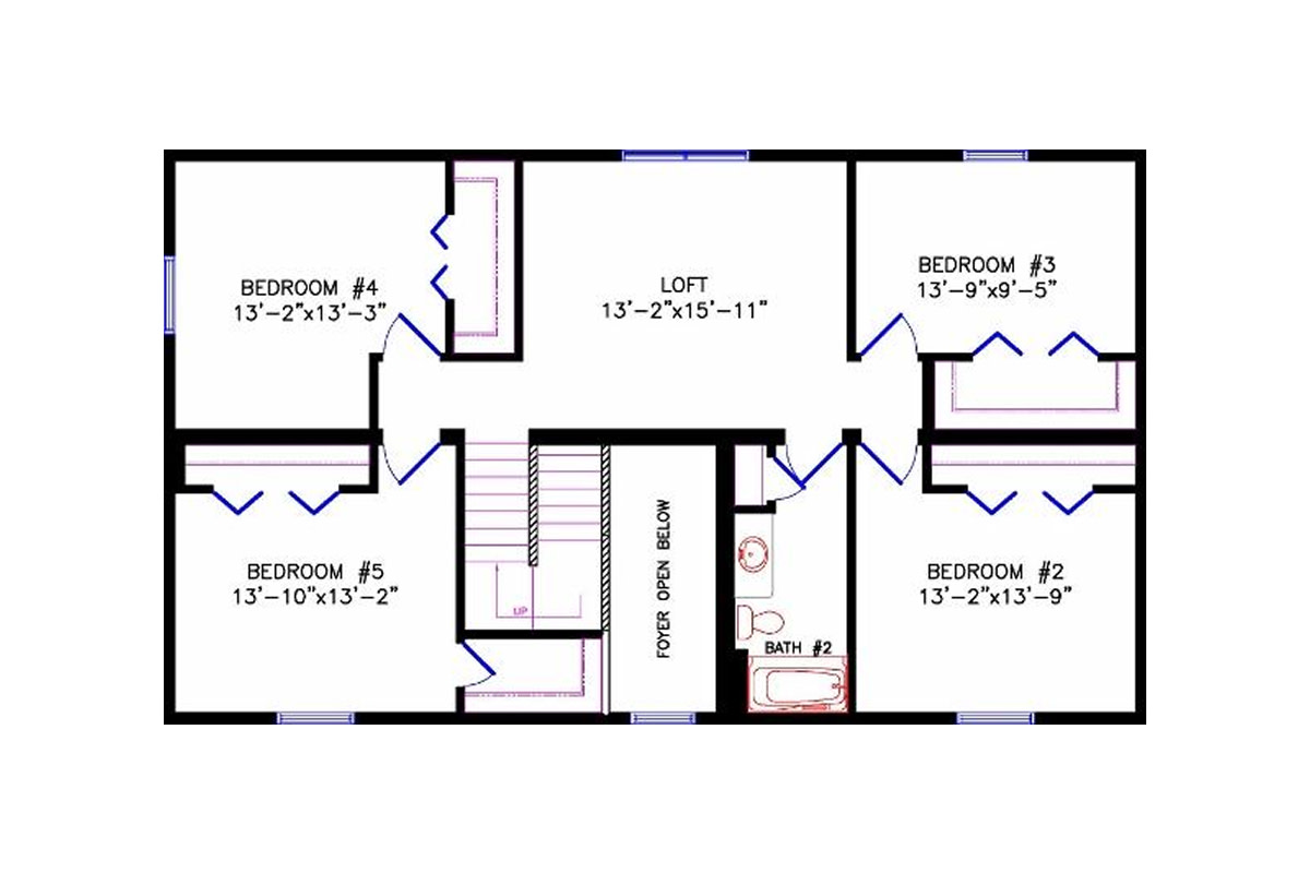
3060 Mapleton Colonial floor plan upper level
Upper Floor

Plan Details

Bedrooms
5
Bathrooms
3
Main Floor Square Feet
1,344
Upper Square Feet
1,208
Total Square Feet
2,552
Main Floor Dimensions
28' X 48'
Upper Floor Dimensions
28' X 48'
Stories
2
Style
Colonial

Customize Your Dream Home

Creating your dream home shouldn’t be complicated. At Wisconsin Homes, our Home Design Center streamlines everything, from plan selection to building options and final drawings, so you can focus on what matters: designing a home you’ll love.

Request a Free Quote

Your dream home starts with the right team. Wisconsin Homes partners with experienced builders across the Midwest who share our commitment to quality craftsmanship and customer care. Contact one of our local builders for your free quote.

Previous Plan

Start Your Dream Home Today

Whether you have a clear vision or you’re just starting to explore your options, we’re here to make the process easy—and even enjoyable. From personalized floor plans to trusted builders that truly care, we’ll help you build your dream home at a guaranteed factory-built price.

Connect with a Local Builder