.background-image, .breadcrumbs, .floor-plan-pill, .floor-plan-swiper-thumbnails, .floor-plan-swiper .swiper-button-prev, .floor-plan-swiper .swiper-button-next, .related-plans-block, .btn, .post-navigation, .cta-block { display: none !important; }
Skip to main content Skip to footer content
Large blue two-story house featuring multiple roof gables, a covered front porch with white railings, and surrounded by a spacious lawn with wooded background.

5205 Lexington

4 Bed
3 Bath
2,871 Sq. Ft.
Print Friendly and PDF

This home is absolutely gorgeous throughout. Every room is incredibly spacious. The massive kitchen has an abundance of cabinetry and connects to a formal dining area. The primary bedroom is complimented with a huge walk-in closet and a luxurious private bath. The upper level is loaded with bedrooms and has a casual, open loft area that overlooks the lower level.

Disclaimer: Artist rendering may include optional or upgraded features.

5205 Lexington Colonial floor plan
Main Floor
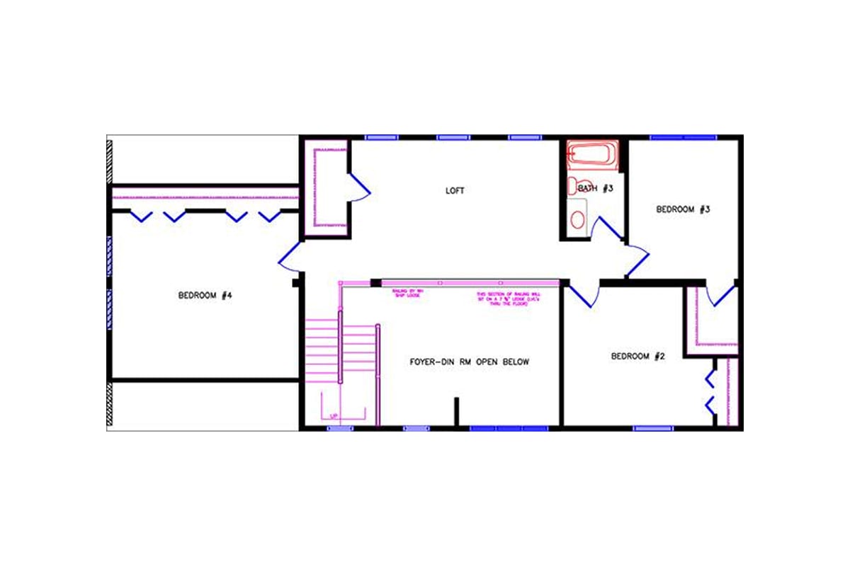
5205 Lexington Colonial floor plan upper level
Upper Floor

Plan Details

Bedrooms
4
Bathrooms
3
Main Floor Square Feet
1,680
Upper Square Feet
1,191
Total Square Feet
2,871
Main Floor Dimensions
28' X 60'
Upper Floor Dimensions
28' X 60'
Stories
2
Style
Colonial

Customize Your Dream Home

Creating your dream home shouldn’t be complicated. At Wisconsin Homes, our Home Design Center streamlines everything, from plan selection to building options and final drawings, so you can focus on what matters: designing a home you’ll love.

Request a Free Quote

Your dream home starts with the right team. Wisconsin Homes partners with experienced builders across the Midwest who share our commitment to quality craftsmanship and customer care. Contact one of our local builders for your free quote.

Next Plan

Start Your Dream Home Today

Whether you have a clear vision or you’re just starting to explore your options, we’re here to make the process easy—and even enjoyable. From personalized floor plans to trusted builders that truly care, we’ll help you build your dream home at a guaranteed factory-built price.

Connect with a Local Builder