.background-image, .breadcrumbs, .floor-plan-pill, .floor-plan-swiper-thumbnails, .floor-plan-swiper .swiper-button-prev, .floor-plan-swiper .swiper-button-next, .related-plans-block, .btn, .post-navigation, .cta-block { display: none !important; }
Skip to main content Skip to footer content
Blue cottage-style modular home by Wisconsin Homes in Marshfield, WI with flower beds and dual wooden porches.

1915 Northwood

3 Bed
2 Bath
1,344 Sq. Ft.
Print Friendly and PDF

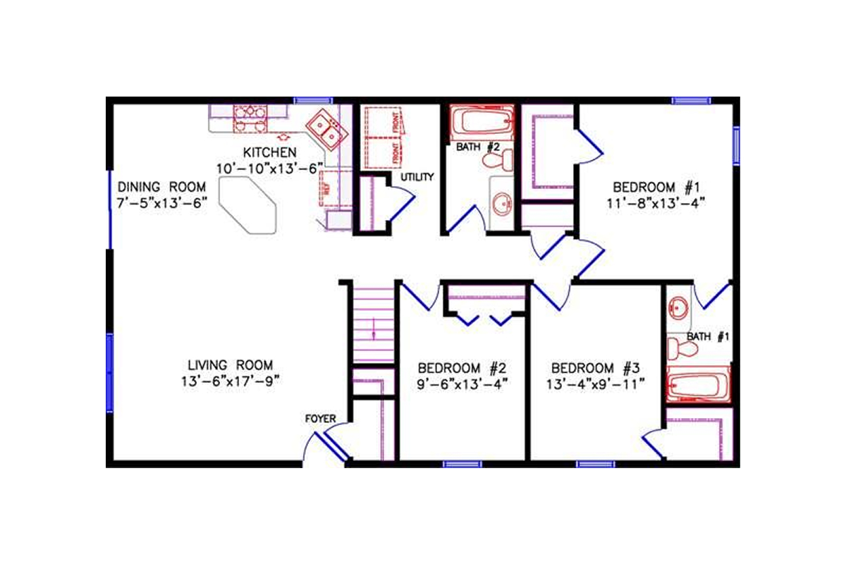
This three bedroom cottage is functionally laid out. The front of the home is composed of a wide-open living room, kitchen and dining room complete with a snack bar island great for entertaining. The rear of the home contains a quaint primary bedroom with a large walk-in closet and adjoining private bathroom. Other features of this wonderful cottage include a utility room and two bedrooms with abundant closet space.

Disclaimer: Artist rendering may include optional or upgraded features.

Plan Details

Bedrooms
3
Bathrooms
2
Main Floor Square Feet
1,344
Upper Square Feet
Total Square Feet
1,344
Main Floor Dimensions
28' X 48'
Upper Floor Dimensions
Stories
1
Style
Cottage

Customize Your Dream Home

Creating your dream home shouldn’t be complicated. At Wisconsin Homes, our Home Design Center streamlines everything, from plan selection to building options and final drawings, so you can focus on what matters: designing a home you’ll love.

Request a Free Quote

Your dream home starts with the right team. Wisconsin Homes partners with experienced builders across the Midwest who share our commitment to quality craftsmanship and customer care. Contact one of our local builders for your free quote.

Previous Plan

Start Your Dream Home Today

Whether you have a clear vision or you’re just starting to explore your options, we’re here to make the process easy—and even enjoyable. From personalized floor plans to trusted builders that truly care, we’ll help you build your dream home at a guaranteed factory-built price.

Connect with a Local Builder