.background-image, .breadcrumbs, .floor-plan-pill, .floor-plan-swiper-thumbnails, .floor-plan-swiper .swiper-button-prev, .floor-plan-swiper .swiper-button-next, .related-plans-block, .btn, .post-navigation, .cta-block { display: none !important; }
Skip to main content Skip to footer content
Modern gray cottage by Wisconsin Homes with large front windows, black trim, and cozy porch seating.

1925 Northwood

2 Bed
2 Bath
1,456 Sq. Ft.

The contemporary design of the Northwood provides the ideal setting for your lifestyle. It’s open, it’s spacious and it will bring on the compliments. Consider the option of a handsome vaulted ceiling to top off the living, dining and kitchen areas. Patio doors and windows let light pour in while opening out to your favorite view. Two generous bedrooms each contain walk-in closets and the primary bedroom includes an adjoining 3/4 bath. This home invites family to gather and friends to drop by.

Download PDF

Disclaimer: Artist rendering may include optional or upgraded features.

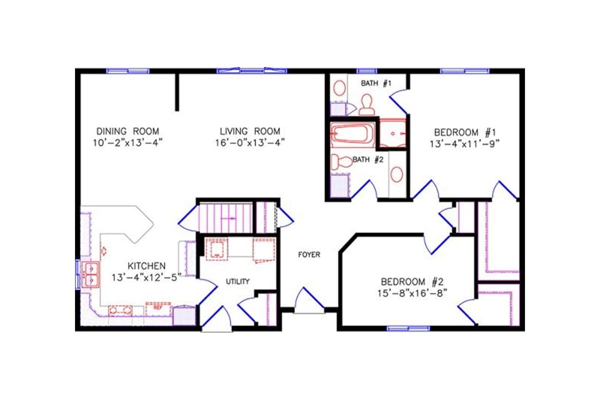
1920 Northwood Cottage floor plan
Alternate Plan-1917 NORTHWOOD 28'x42' | 1176 Sq Ft
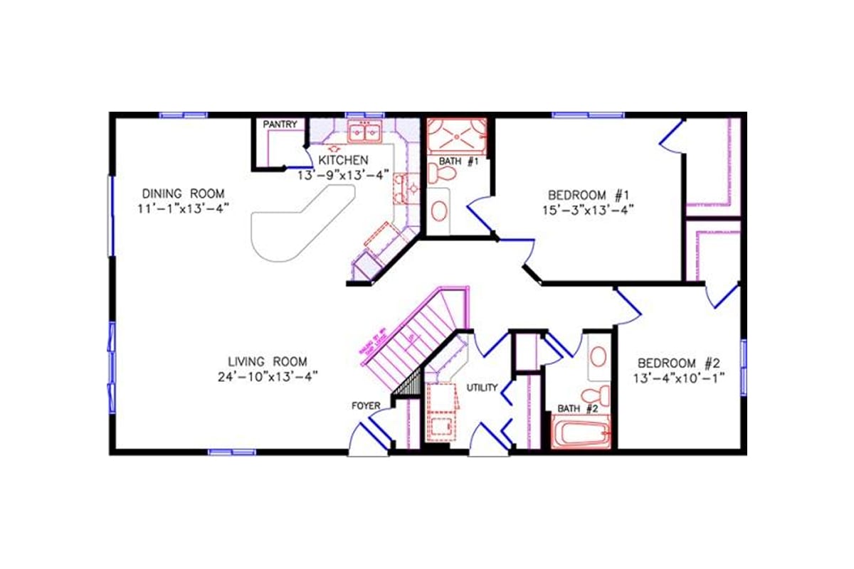
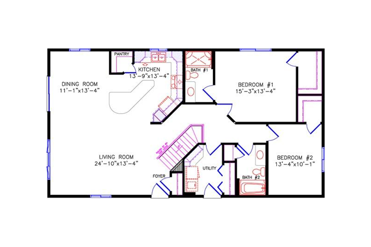
1920 Northwood Cottage floor plan
Alternate Plan-1060 PARK RIDGE 28'x48' | 1344 Sq Ft

Plan Details

Bedrooms
2
Bathrooms
2
Main Floor Square Feet
1,456
Upper Square Feet
Total Square Feet
1,456
Main Floor Dimensions
28' X 52'
Upper Floor Dimensions
Stories
1
Style
Cottage

Customize Your Dream Home

Creating your dream home shouldn’t be complicated. At Wisconsin Homes, our Home Design Center streamlines everything, from plan selection to building options and final drawings, so you can focus on what matters: designing a home you’ll love.

Request a Free Quote

Your dream home starts with the right team. Wisconsin Homes partners with experienced builders across the Midwest who share our commitment to quality craftsmanship and customer care. Contact one of our local builders for your free quote.

Previous Plan
Next Plan

Start Your Dream Home Today

Whether you have a clear vision or you’re just starting to explore your options, we’re here to make the process easy—and even enjoyable. From personalized floor plans to trusted builders that truly care, we’ll help you build your dream home at a guaranteed factory-built price.

Connect with a Local Builder