.background-image, .breadcrumbs, .floor-plan-pill, .floor-plan-swiper-thumbnails, .floor-plan-swiper .swiper-button-prev, .floor-plan-swiper .swiper-button-next, .related-plans-block, .btn, .post-navigation, .cta-block { display: none !important; }
Skip to main content Skip to footer content
Wood cottage-style modular home by Wisconsin Homes in Marshfield, WI with green metal roof and large back deck.

2030 Lakewood Plus

1 Bed
2 Bath
2,413 Sq. Ft.
Print Friendly and PDF

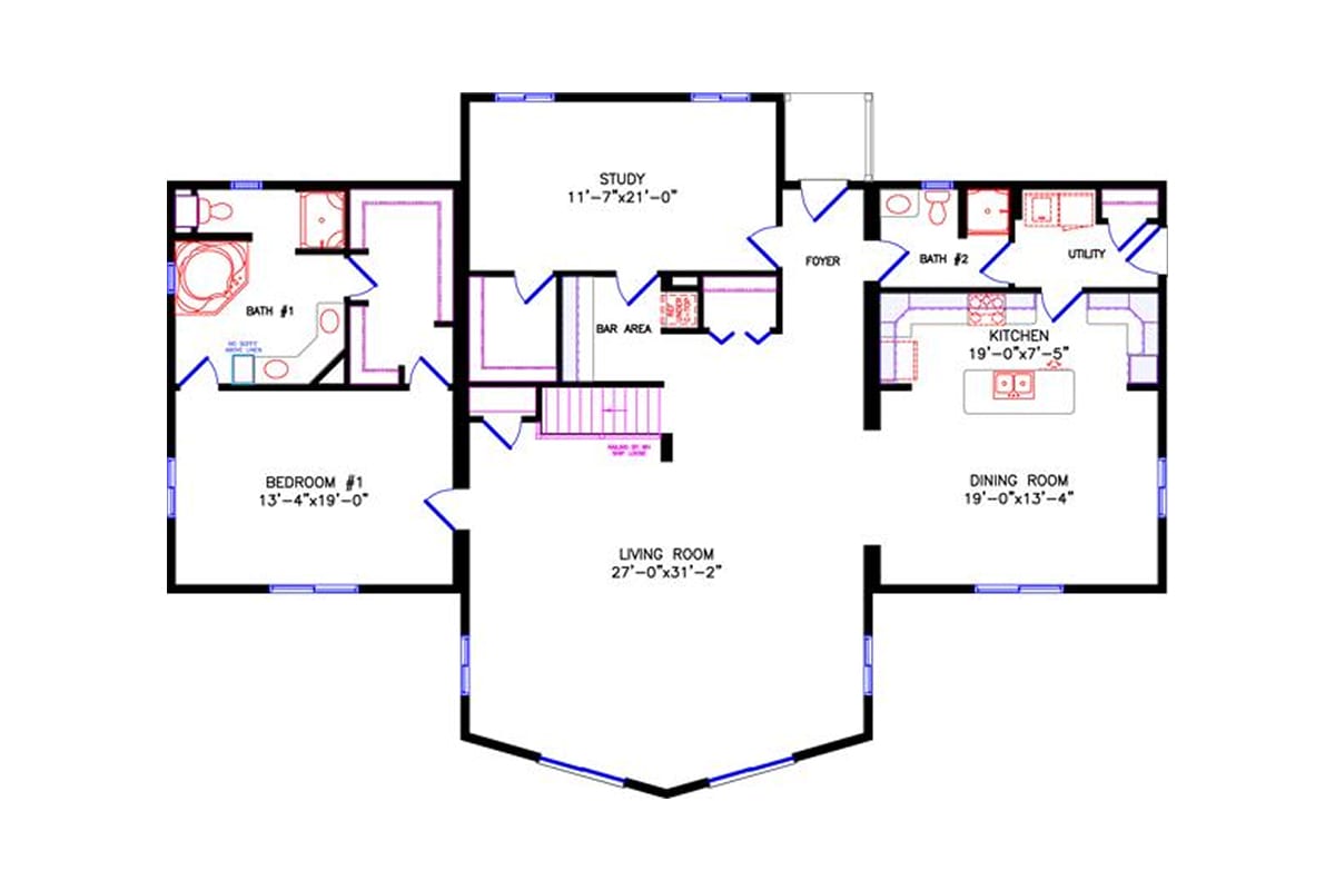
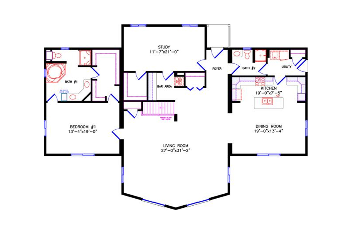
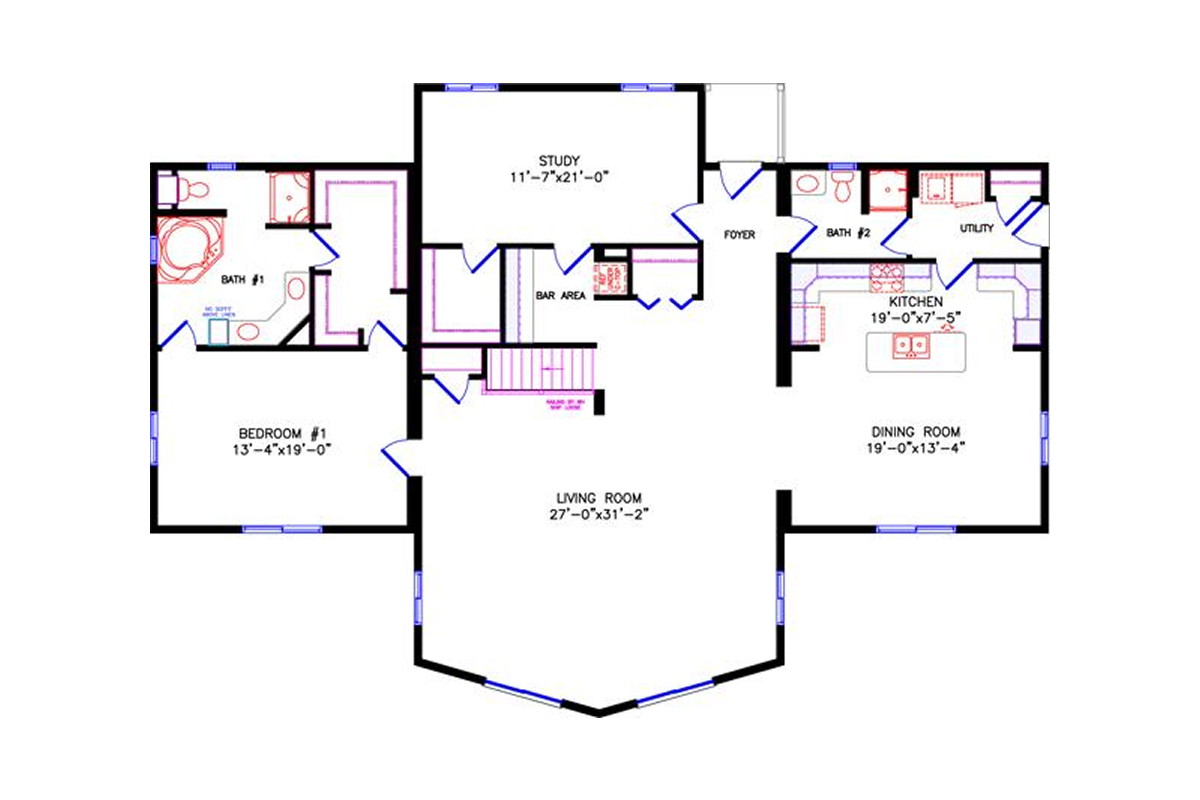
This magnificent Lakewood Plus home is perfect for everyday living or as a vacation paradise. The layout is similar to our 4750 Loft but as a ranch style home. This one bedroom home has an expansive primary bathroom with a corner soaking tub and angled double sink vanity. The spacious Study could be easily converted into a large second bedroom. You could get lost in two walk-in closets with wrap around shelving. The second bathroom has convenient access from both the Utility Room and Foyer. Enjoy entertaining with your very own built-in bar located just off of the grand Living Room.

Disclaimer: Artist rendering may include optional or upgraded features.

Plan Details

Bedrooms
1
Bathrooms
2
Main Floor Square Feet
2,413
Upper Square Feet
Total Square Feet
2,413
Main Floor Dimensions
48' X 68'
Upper Floor Dimensions
Stories
1
Style
Cottage

Customize Your Dream Home

Creating your dream home shouldn’t be complicated. At Wisconsin Homes, our Home Design Center streamlines everything, from plan selection to building options and final drawings, so you can focus on what matters: designing a home you’ll love.

Request a Free Quote

Your dream home starts with the right team. Wisconsin Homes partners with experienced builders across the Midwest who share our commitment to quality craftsmanship and customer care. Contact one of our local builders for your free quote.

Previous Plan
Next Plan

Start Your Dream Home Today

Whether you have a clear vision or you’re just starting to explore your options, we’re here to make the process easy—and even enjoyable. From personalized floor plans to trusted builders that truly care, we’ll help you build your dream home at a guaranteed factory-built price.

Connect with a Local Builder