.background-image, .breadcrumbs, .floor-plan-pill, .floor-plan-swiper-thumbnails, .floor-plan-swiper .swiper-button-prev, .floor-plan-swiper .swiper-button-next, .related-plans-block, .btn, .post-navigation, .cta-block { display: none !important; }
Skip to main content Skip to footer content
Green cottage-style modular home by Wisconsin Homes in Marshfield, WI with expansive front deck and concrete walkway.

2060 Lakewood Plus

3 Bed
2 Bath
2,099 Sq. Ft.

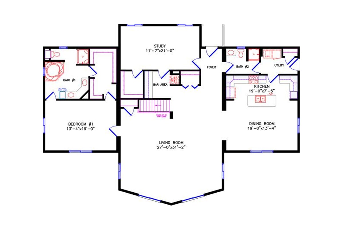
The Lakewood Plus is contemporary elegance at its best. Wide open living spaces and optional vaulted ceilings allow families to convene wherever they may be. Complete with two full baths and a first floor laundry, this three bedroom home is perfect whether it’s nestled in the country or tucked into a brand new development.

Download PDF

Disclaimer: Artist rendering may include optional or upgraded features.

2060 Lakewood Cottage floor plan alternative
Alternate Plan-2030 LAKEWOOD 48'x68' | 2377 Sq Ft

Virtual Tour

Plan Details

Bedrooms
3
Bathrooms
2
Main Floor Square Feet
2,099
Upper Square Feet
Total Square Feet
2,099
Main Floor Dimensions
48' X 56'
Upper Floor Dimensions
Stories
1
Style
Cottage

Customize Your Dream Home

Creating your dream home shouldn’t be complicated. At Wisconsin Homes, our Home Design Center streamlines everything, from plan selection to building options and final drawings, so you can focus on what matters: designing a home you’ll love.

Request a Free Quote

Your dream home starts with the right team. Wisconsin Homes partners with experienced builders across the Midwest who share our commitment to quality craftsmanship and customer care. Contact one of our local builders for your free quote.

Previous Plan
Next Plan

Start Your Dream Home Today

Whether you have a clear vision or you’re just starting to explore your options, we’re here to make the process easy—and even enjoyable. From personalized floor plans to trusted builders that truly care, we’ll help you build your dream home at a guaranteed factory-built price.

Connect with a Local Builder