.background-image, .breadcrumbs, .floor-plan-pill, .floor-plan-swiper-thumbnails, .floor-plan-swiper .swiper-button-prev, .floor-plan-swiper .swiper-button-next, .related-plans-block, .btn, .post-navigation, .cta-block { display: none !important; }
Skip to main content Skip to footer content
Dark green cottage-style modular home by Wisconsin Homes in Marshfield, WI with black trim and brick patio.

5075 Cavalier

2 Bed
2 Bath
1,120 Sq. Ft.
Print Friendly and PDF

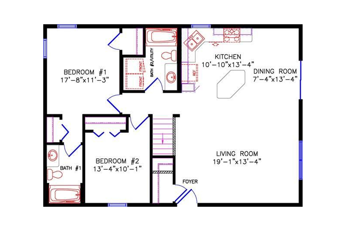
This cozy Cavalier packs a big punch, with its two sizable bedrooms and walk-in entry closet. The main floor laundry is combined with an easily accessible main bathroom. The primary bedroom possesses two closets and a fine primary bath. The kitchen is perfect for entertaining with its island that overlooks an open concept living room and dining area.

Disclaimer: Artist rendering may include optional or upgraded features.

Plan Details

Bedrooms
2
Bathrooms
2
Main Floor Square Feet
1,120
Upper Square Feet
Total Square Feet
1,120
Main Floor Dimensions
28' X 40'
Upper Floor Dimensions
Stories
1
Style
Cottage

Customize Your Dream Home

Creating your dream home shouldn’t be complicated. At Wisconsin Homes, our Home Design Center streamlines everything, from plan selection to building options and final drawings, so you can focus on what matters: designing a home you’ll love.

Request a Free Quote

Your dream home starts with the right team. Wisconsin Homes partners with experienced builders across the Midwest who share our commitment to quality craftsmanship and customer care. Contact one of our local builders for your free quote.

Previous Plan
Next Plan

Start Your Dream Home Today

Whether you have a clear vision or you’re just starting to explore your options, we’re here to make the process easy—and even enjoyable. From personalized floor plans to trusted builders that truly care, we’ll help you build your dream home at a guaranteed factory-built price.

Connect with a Local Builder