.background-image, .breadcrumbs, .floor-plan-pill, .floor-plan-swiper-thumbnails, .floor-plan-swiper .swiper-button-prev, .floor-plan-swiper .swiper-button-next, .related-plans-block, .btn, .post-navigation, .cta-block { display: none !important; }
Skip to main content Skip to footer content
Gray cottage-style home with white trim, black shutters, a covered front porch, and attached two-car garage.

1615 Cambridge

3 Bed
2 Bath
1,904 Sq. Ft.

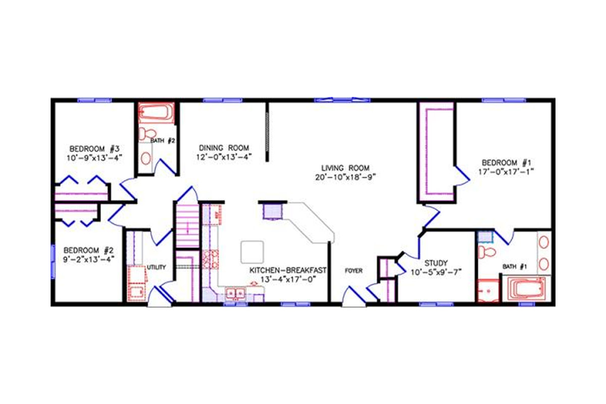
This gorgeous, three bedroom home has a fabulous kitchen complete with amenities such as a large working island, a snack bar, a built-in desk area and a walk-in pantry. The front foyer opens into a large living area and is adjacent to a comfortable, private study. The primary bedroom is accented with a spacious walk-in closet and elegant private primary bath.

Download PDF

Disclaimer: Artist rendering may include optional or upgraded features.

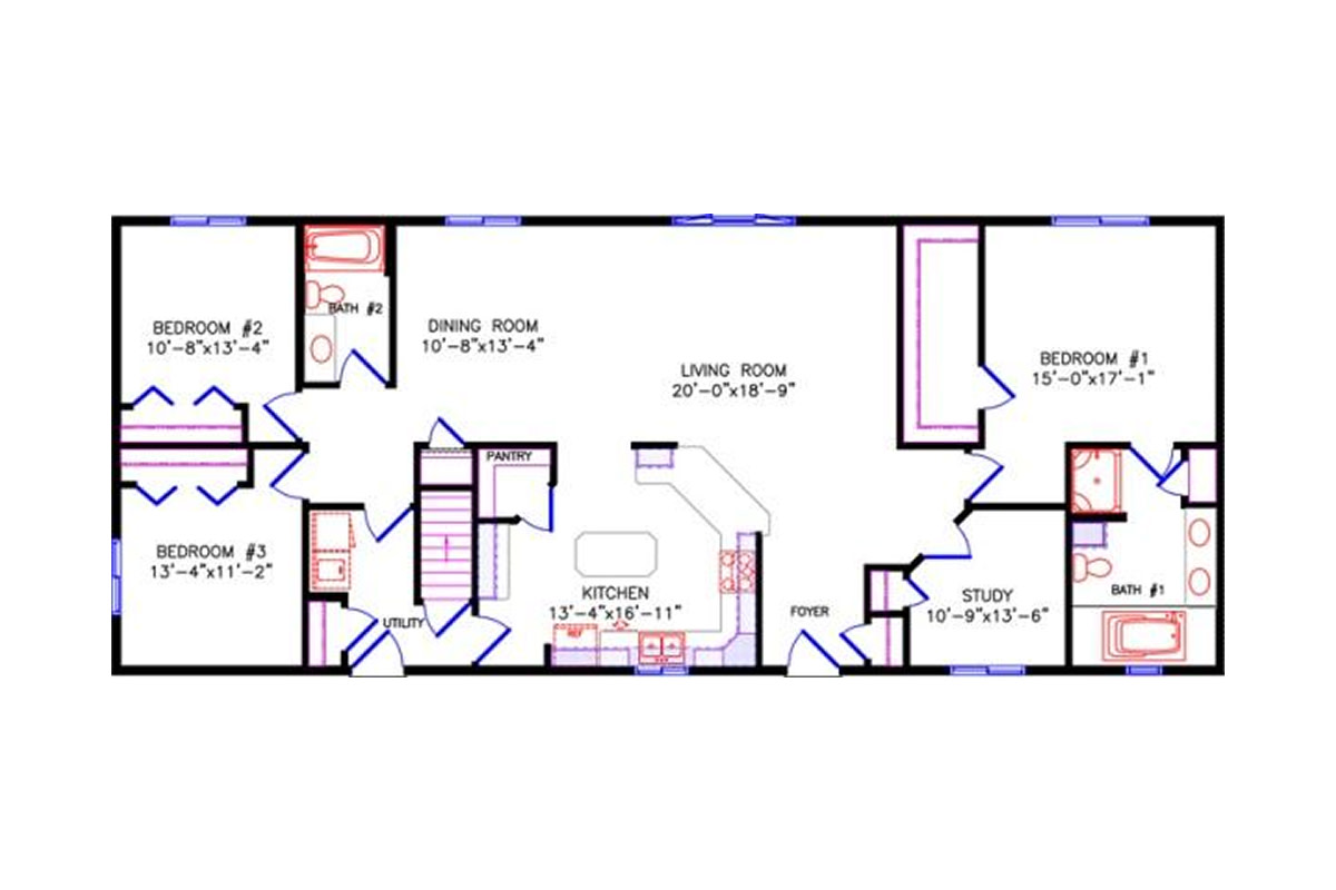
1615 Cambridge Cottage floor plan alternate
Alternative Plan-1620 CAMBRIDGE 28'x68' | 1904 Sq Ft
1615 Cambridge Cottage floor plan
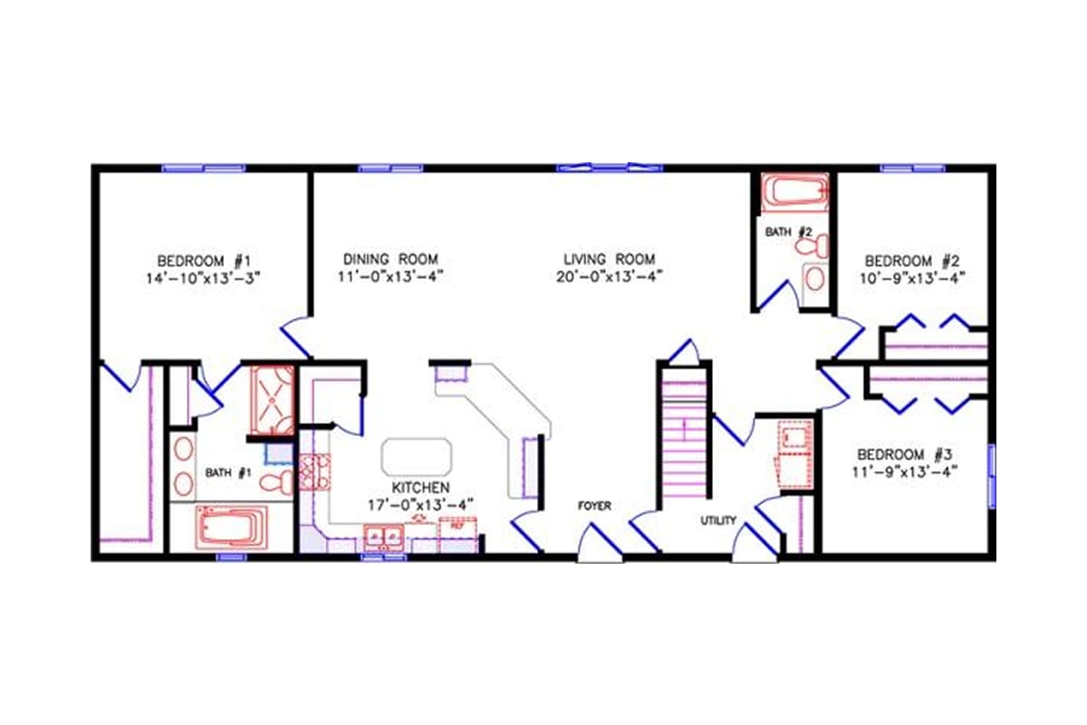
Alternative Plan-1618 CAMBRIDGE 28'x64' | 1792 Sq Ft

Plan Details

Bedrooms
3
Bathrooms
2
Main Floor Square Feet
1,904
Upper Square Feet
Total Square Feet
1,904
Main Floor Dimensions
28' X 68'
Upper Floor Dimensions
Stories
1
Style
Ranch

Customize Your Dream Home

Creating your dream home shouldn’t be complicated. At Wisconsin Homes, our Home Design Center streamlines everything, from plan selection to building options and final drawings, so you can focus on what matters: designing a home you’ll love.

Request a Free Quote

Your dream home starts with the right team. Wisconsin Homes partners with experienced builders across the Midwest who share our commitment to quality craftsmanship and customer care. Contact one of our local builders for your free quote.

Previous Plan

Start Your Dream Home Today

Whether you have a clear vision or you’re just starting to explore your options, we’re here to make the process easy—and even enjoyable. From personalized floor plans to trusted builders that truly care, we’ll help you build your dream home at a guaranteed factory-built price.

Connect with a Local Builder