.background-image, .breadcrumbs, .floor-plan-pill, .floor-plan-swiper-thumbnails, .floor-plan-swiper .swiper-button-prev, .floor-plan-swiper .swiper-button-next, .related-plans-block, .btn, .post-navigation, .cta-block { display: none !important; }
Skip to main content Skip to footer content
Gray ranch-style modular home by Wisconsin Homes with white garage doors and a covered front porch in Marshfield, WI.

2225 Brookdale

3 Bed
2 Bath
1,568 Sq. Ft.

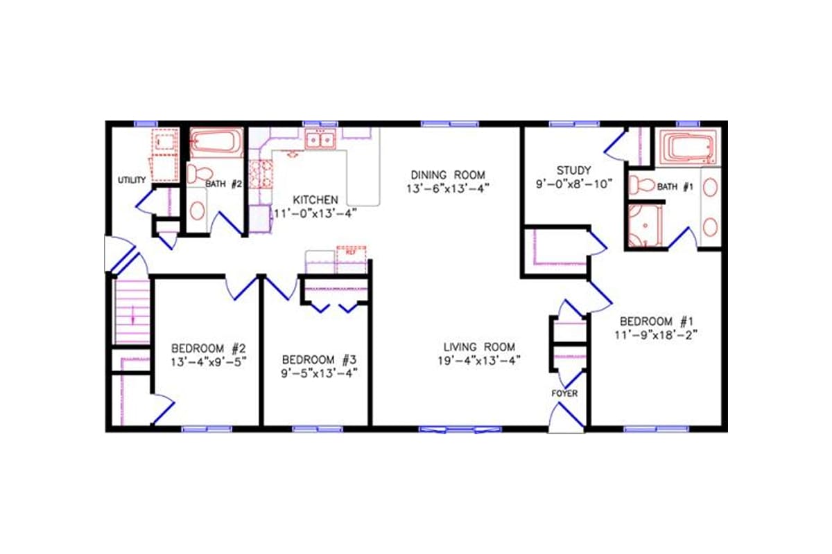
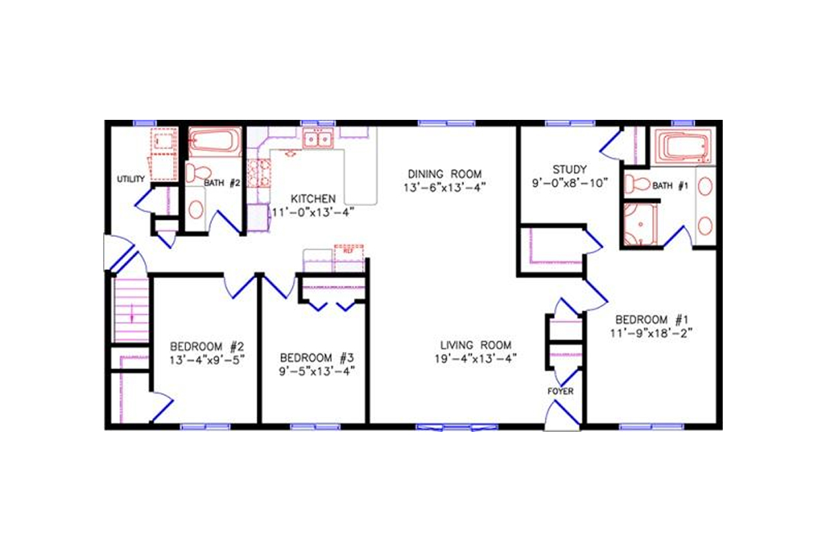
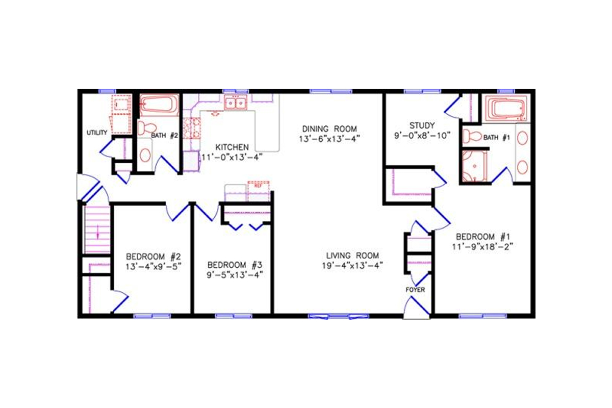
This is a wonderfully designed ranch home. The kitchen, living room and dining areas are connected in an open concept design. The primary bedroom has a study attached for relaxation and privacy. Also attached to the primary bedroom is a walk-in closet and a bathroom complete with a soaking tub. Finally, a large laundry room is strategically located at the end of the home by the garage for those muddy days.

Download PDF

Disclaimer: Artist rendering may include optional or upgraded features.

Plan Details

Bedrooms
3
Bathrooms
2
Main Floor Square Feet
1,568
Upper Square Feet
Total Square Feet
1,568
Main Floor Dimensions
28' X 56'
Upper Floor Dimensions
Stories
1
Style
Ranch

Customize Your Dream Home

Creating your dream home shouldn’t be complicated. At Wisconsin Homes, our Home Design Center streamlines everything, from plan selection to building options and final drawings, so you can focus on what matters: designing a home you’ll love.

Request a Free Quote

Your dream home starts with the right team. Wisconsin Homes partners with experienced builders across the Midwest who share our commitment to quality craftsmanship and customer care. Contact one of our local builders for your free quote.

Previous Plan
Next Plan

Start Your Dream Home Today

Whether you have a clear vision or you’re just starting to explore your options, we’re here to make the process easy—and even enjoyable. From personalized floor plans to trusted builders that truly care, we’ll help you build your dream home at a guaranteed factory-built price.

Connect with a Local Builder