.background-image, .breadcrumbs, .floor-plan-pill, .floor-plan-swiper-thumbnails, .floor-plan-swiper .swiper-button-prev, .floor-plan-swiper .swiper-button-next, .related-plans-block, .btn, .post-navigation, .cta-block { display: none !important; }
Skip to main content Skip to footer content
Tan modular ranch home by Wisconsin Homes featuring a wraparound front porch and attached two-car garage in Marshfield, WI.

2285 Brookdale

3 Bed
3 Bath
1,680 Sq. Ft.
Print Friendly and PDF

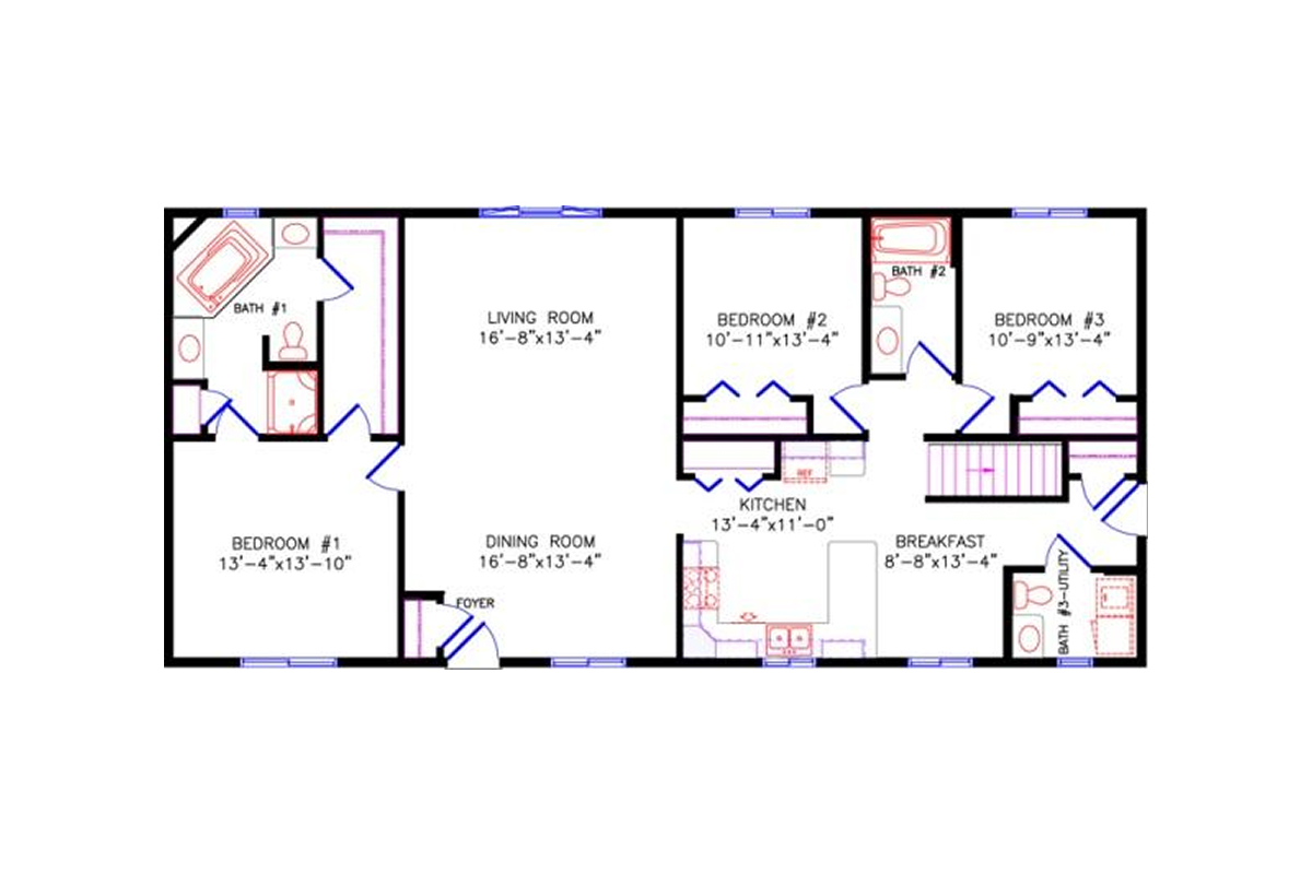
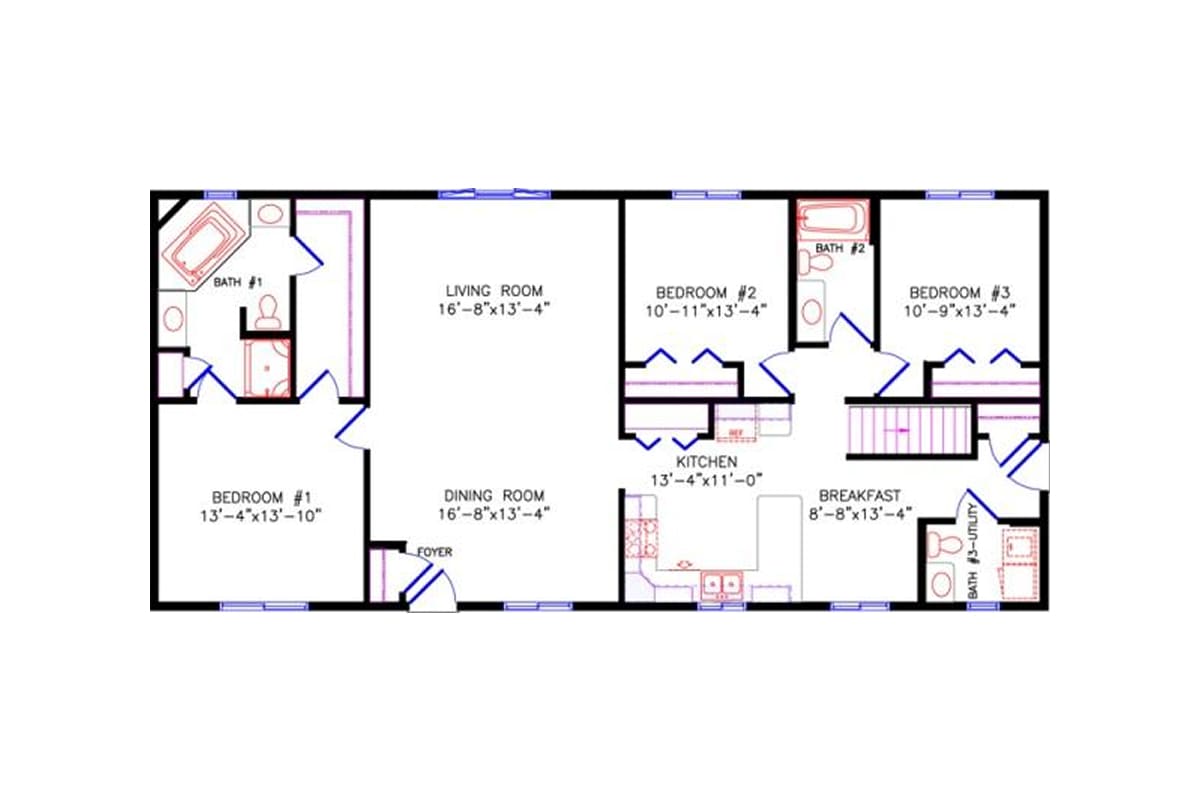
This home is very comfortable and functional. A half-bath/utility room is conveniently located near the garage entry. The primary bath offers a separate shower and fabulous corner tub, along with double vanities. The spacious walk-in closet in the primary bedroom has a handy extra door to allow easy access to the adjoining bath.

Disclaimer: Artist rendering may include optional or upgraded features.

Plan Details

Bedrooms
3
Bathrooms
3
Main Floor Square Feet
1,680
Upper Square Feet
Total Square Feet
1,680
Main Floor Dimensions
28' X 60'
Upper Floor Dimensions
Stories
1
Style
Ranch

Customize Your Dream Home

Creating your dream home shouldn’t be complicated. At Wisconsin Homes, our Home Design Center streamlines everything, from plan selection to building options and final drawings, so you can focus on what matters: designing a home you’ll love.

Request a Free Quote

Your dream home starts with the right team. Wisconsin Homes partners with experienced builders across the Midwest who share our commitment to quality craftsmanship and customer care. Contact one of our local builders for your free quote.

Previous Plan
Next Plan

Start Your Dream Home Today

Whether you have a clear vision or you’re just starting to explore your options, we’re here to make the process easy—and even enjoyable. From personalized floor plans to trusted builders that truly care, we’ll help you build your dream home at a guaranteed factory-built price.

Connect with a Local Builder