.background-image, .breadcrumbs, .floor-plan-pill, .floor-plan-swiper-thumbnails, .floor-plan-swiper .swiper-button-prev, .floor-plan-swiper .swiper-button-next, .related-plans-block, .btn, .post-navigation, .cta-block { display: none !important; }
Skip to main content Skip to footer content
Red ranch-style modular home by Wisconsin Homes with beige trim, front porch, and attached garage in Marshfield, WI.

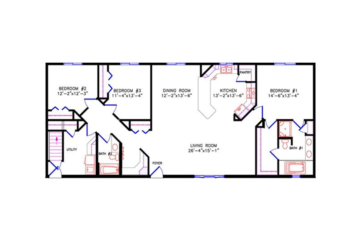
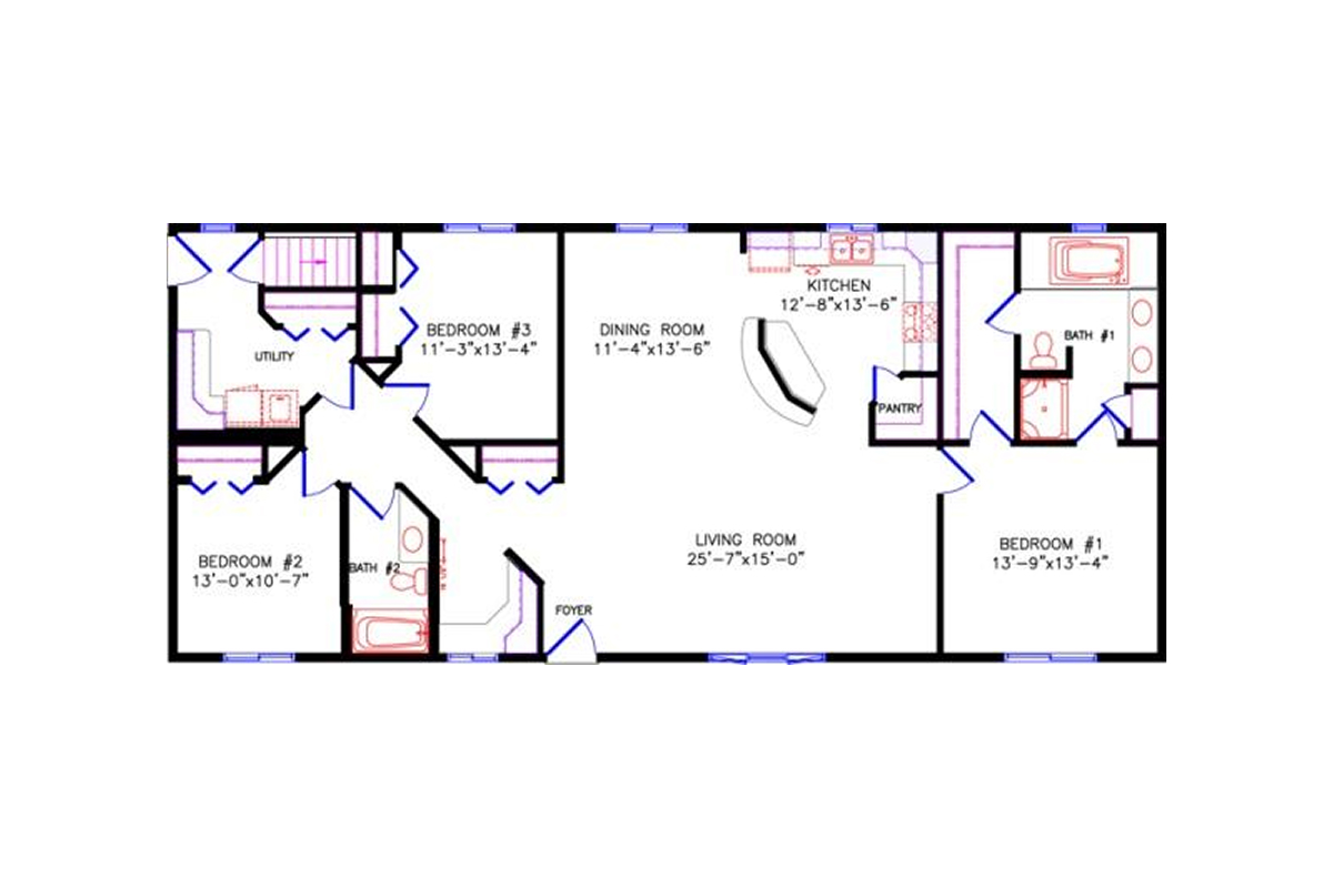
2320 Brookdale

3 Bed
2 Bath
1,792 Sq. Ft.
Download PDF

Disclaimer: Artist rendering may include optional or upgraded features.

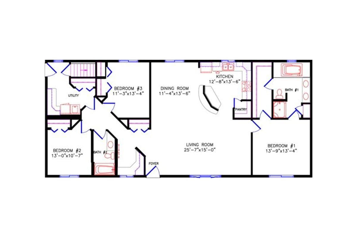
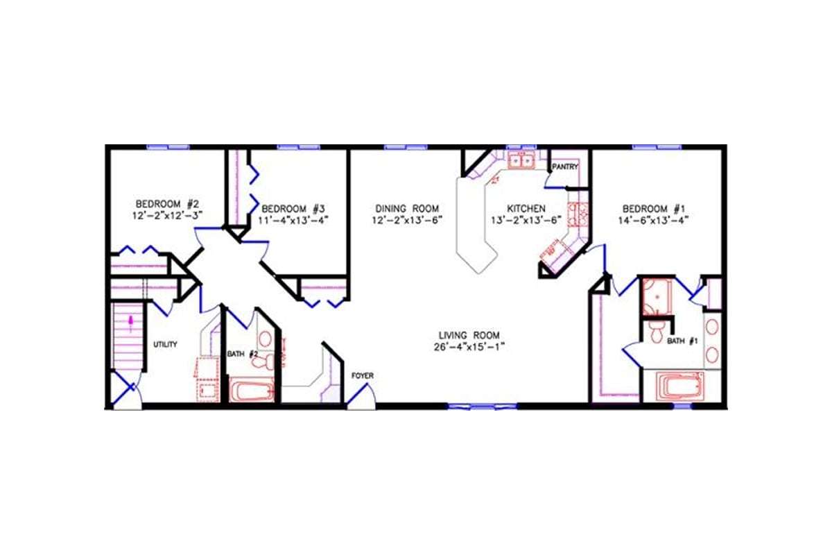
2320 Brookdale Ranch floor plan alternative plan
Alternate Plan-2321 BROOKDALE 28'x68' | 1904 Sq Ft
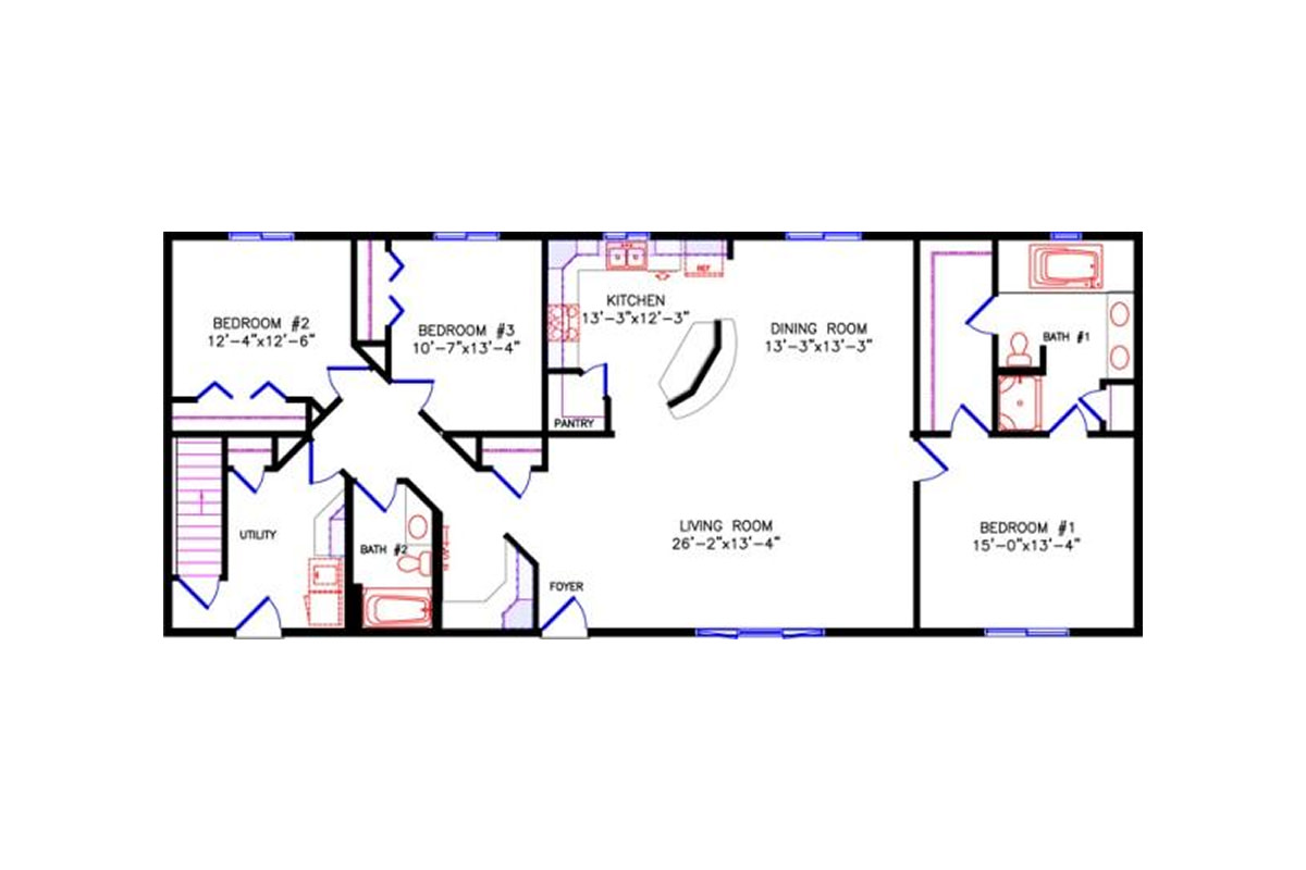
2320 Brookdale Ranch floor plan alternative plan 2
Alternate Plan-2322 BROOKDALE 28'x66' | 1849 Sq Ft

Plan Details

Bedrooms
3
Bathrooms
2
Main Floor Square Feet
1,792
Upper Square Feet
Total Square Feet
1,792
Main Floor Dimensions
28' X 64'
Upper Floor Dimensions
Stories
1
Style
Ranch

Customize Your Dream Home

Creating your dream home shouldn’t be complicated. At Wisconsin Homes, our Home Design Center streamlines everything, from plan selection to building options and final drawings, so you can focus on what matters: designing a home you’ll love.

Request a Free Quote

Your dream home starts with the right team. Wisconsin Homes partners with experienced builders across the Midwest who share our commitment to quality craftsmanship and customer care. Contact one of our local builders for your free quote.

Previous Plan
Next Plan

Start Your Dream Home Today

Whether you have a clear vision or you’re just starting to explore your options, we’re here to make the process easy—and even enjoyable. From personalized floor plans to trusted builders that truly care, we’ll help you build your dream home at a guaranteed factory-built price.

Connect with a Local Builder