.background-image, .breadcrumbs, .floor-plan-pill, .floor-plan-swiper-thumbnails, .floor-plan-swiper .swiper-button-prev, .floor-plan-swiper .swiper-button-next, .related-plans-block, .btn, .post-navigation, .cta-block { display: none !important; }
Skip to main content Skip to footer content
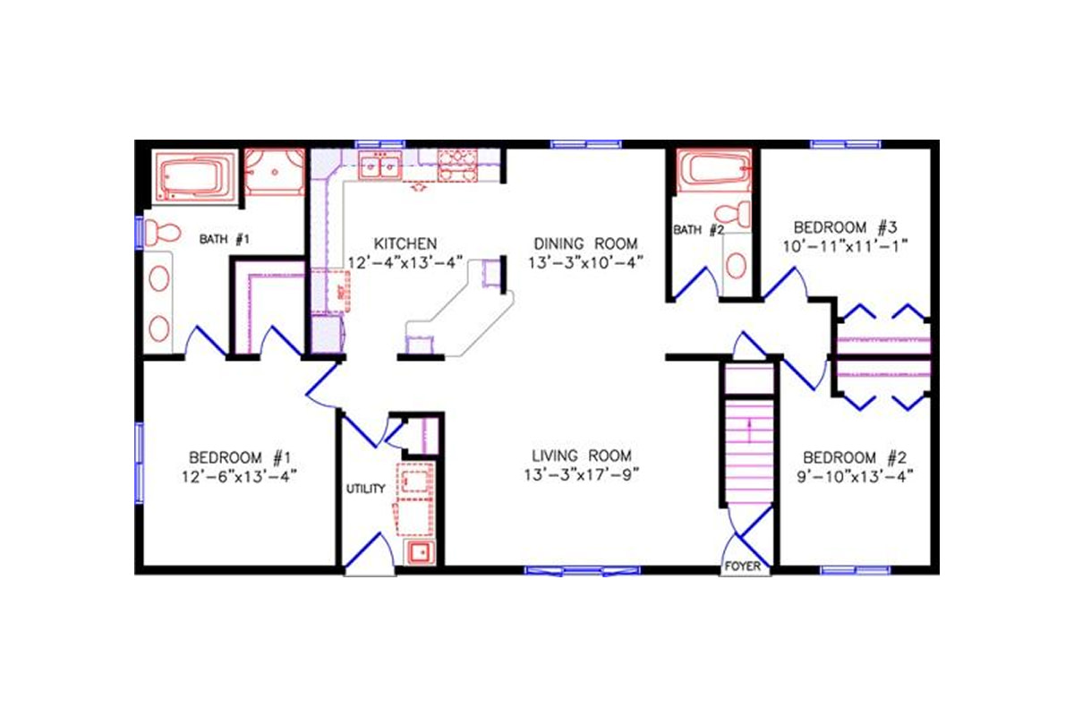
2345 Brookdale Ranch floor plan

2345 Brookdale

3 Bed
2 Bath
1,680 Sq. Ft.
Print Friendly and PDF

The upscale design of this contemporary ranch style home is unparalleled if entertaining is what you’re after. The open kitchen includes a spacious walk-in pantry and a large snack bar perfect for any chef. The grand primary bedroom suite offers all the essential amenities for the professional household with its walk-in closet, private primary bath, a lavish 2-person corner tub, and separate double vanity.

Disclaimer: Artist rendering may include optional or upgraded features.

2345 Brookdale Ranch floor plan
Main Floor
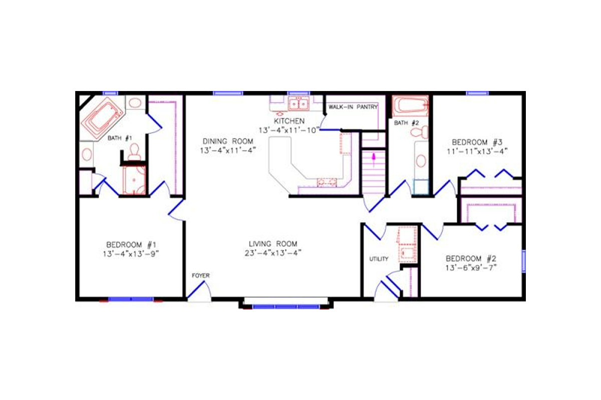
2345 Brookdale Ranch floor plan alternate 1
Alternate Plan-1636 CAMBRIDGE 28'x52' | 1456 Sq Ft

Plan Details

Bedrooms
3
Bathrooms
2
Main Floor Square Feet
1,680
Upper Square Feet
Total Square Feet
1,680
Main Floor Dimensions
28' X 60'
Upper Floor Dimensions
Stories
1
Style
Ranch

Customize Your Dream Home

Creating your dream home shouldn’t be complicated. At Wisconsin Homes, our Home Design Center streamlines everything, from plan selection to building options and final drawings, so you can focus on what matters: designing a home you’ll love.

Request a Free Quote

Your dream home starts with the right team. Wisconsin Homes partners with experienced builders across the Midwest who share our commitment to quality craftsmanship and customer care. Contact one of our local builders for your free quote.

Previous Plan
Next Plan

Start Your Dream Home Today

Whether you have a clear vision or you’re just starting to explore your options, we’re here to make the process easy—and even enjoyable. From personalized floor plans to trusted builders that truly care, we’ll help you build your dream home at a guaranteed factory-built price.

Connect with a Local Builder