.background-image, .breadcrumbs, .floor-plan-pill, .floor-plan-swiper-thumbnails, .floor-plan-swiper .swiper-button-prev, .floor-plan-swiper .swiper-button-next, .related-plans-block, .btn, .post-navigation, .cta-block { display: none !important; }
Skip to main content Skip to footer content
White ranch-style modular home by Wisconsin Homes with black trim, stone base, and black garage door in Marshfield, WI.

3660 Spectrum

3 Bed
3 Bath
2,052 Sq. Ft.

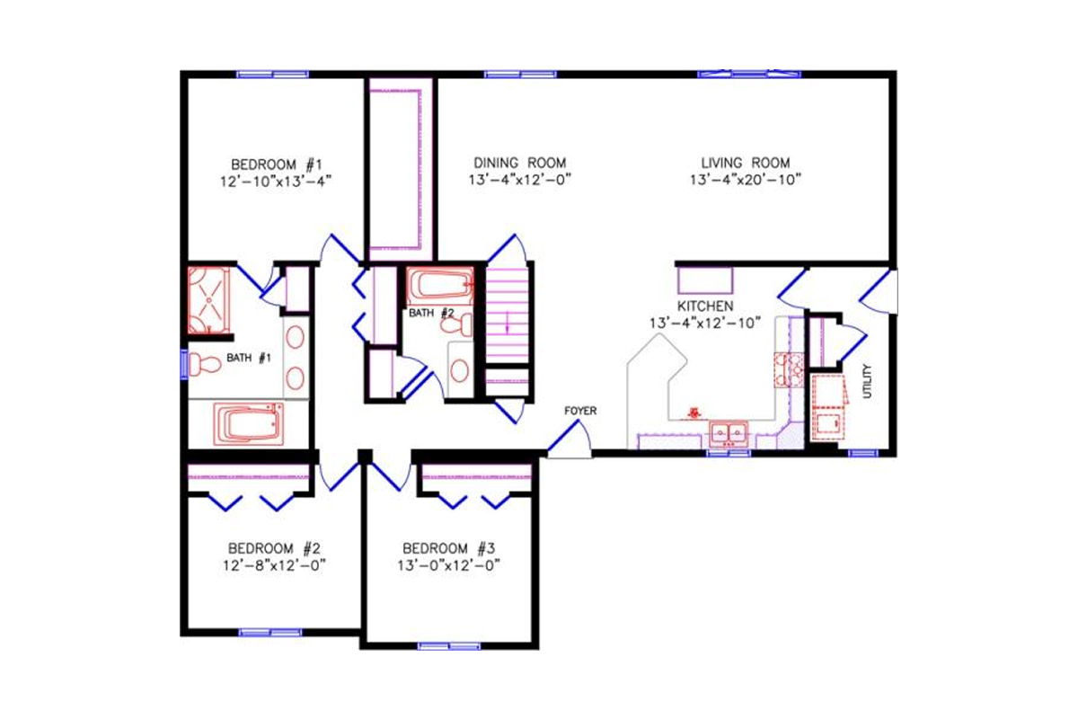
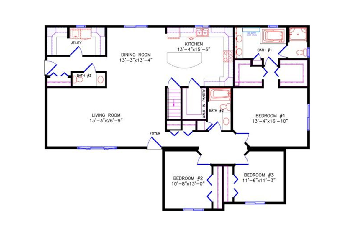
This three bedroom, two and one-half bath home features a spacious primary bedroom with his/hers walk-in closets and a luxurious private bath. The kitchen is accented with a large walk-in pantry and an expansive snack bar. Complimented with a comfortable living area, first floor laundry and an abundance of storage space, this home is an excellent choice wherever you’re building.

Download PDF

Disclaimer: Artist rendering may include optional or upgraded features.

3660 Spectrum Ranch floor plan
Main Floor
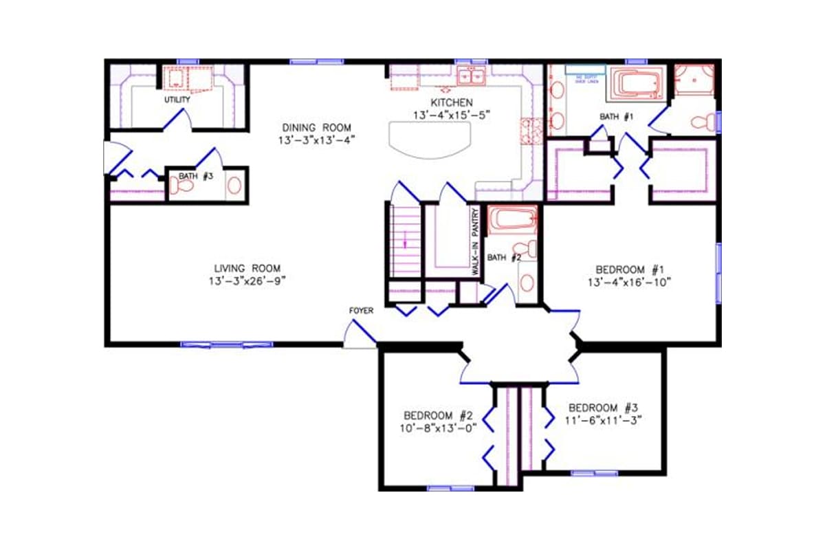
3660 Spectrum Ranch floor plan alternate 1
Alternate Plan-3631 SPECTRUM 42'x52' | 1821 Sq Ft
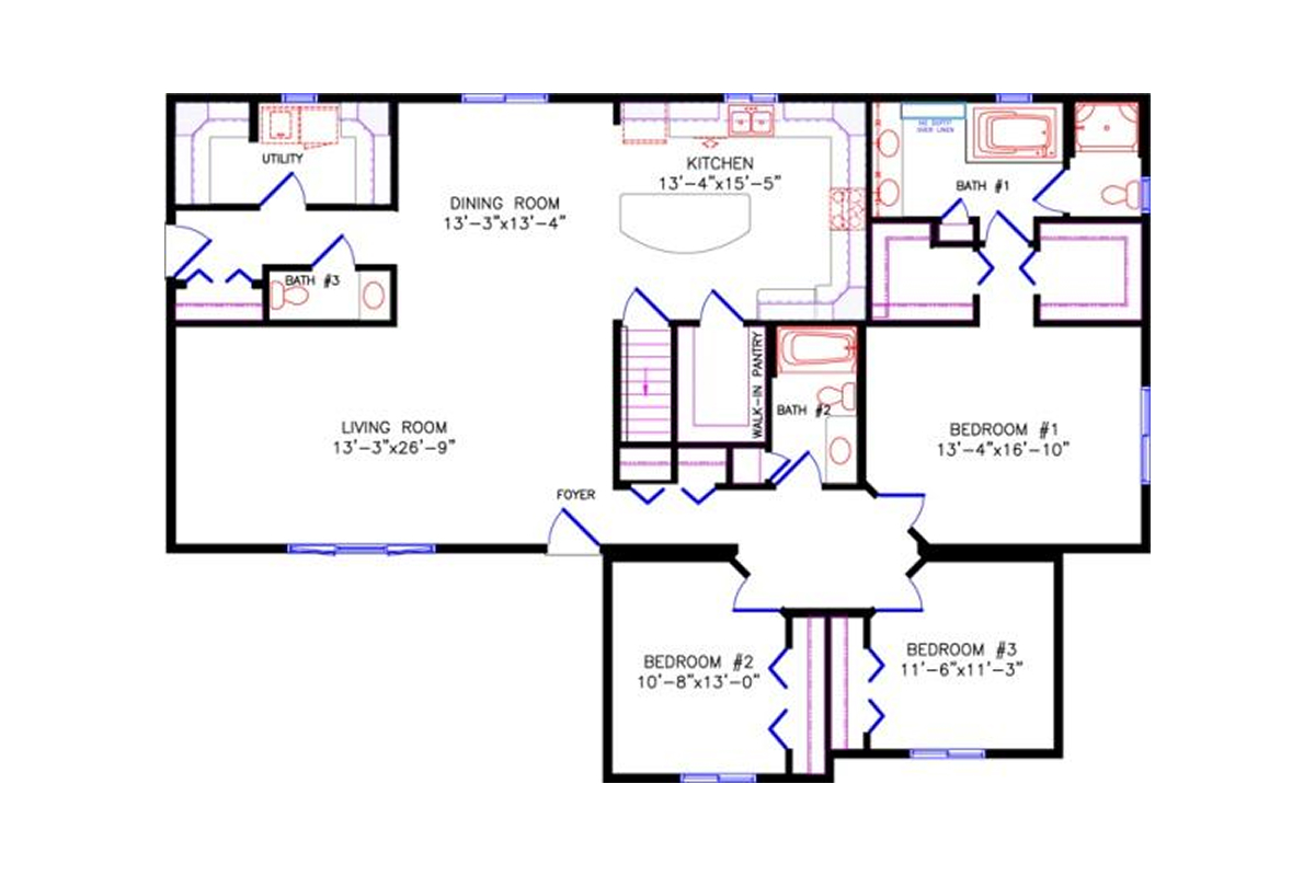
3660 Spectrum Ranch floor plan alternate 2
Alternate Plan-3680 SPECTRUM 42'x56' | 1940 Sq Ft
On-Display

Virtual Tour

Plan Details

Bedrooms
3
Bathrooms
3
Main Floor Square Feet
2,052
Upper Square Feet
Total Square Feet
2,052
Main Floor Dimensions
42' X 60'
Upper Floor Dimensions
Stories
1
Style
Ranch

Customize Your Dream Home

Creating your dream home shouldn’t be complicated. At Wisconsin Homes, our Home Design Center streamlines everything, from plan selection to building options and final drawings, so you can focus on what matters: designing a home you’ll love.

Request a Free Quote

Your dream home starts with the right team. Wisconsin Homes partners with experienced builders across the Midwest who share our commitment to quality craftsmanship and customer care. Contact one of our local builders for your free quote.

All 3660 Spectrum Photos

Previous Plan
Next Plan

Start Your Dream Home Today

Whether you have a clear vision or you’re just starting to explore your options, we’re here to make the process easy—and even enjoyable. From personalized floor plans to trusted builders that truly care, we’ll help you build your dream home at a guaranteed factory-built price.

Connect with a Local Builder