.background-image, .breadcrumbs, .floor-plan-pill, .floor-plan-swiper-thumbnails, .floor-plan-swiper .swiper-button-prev, .floor-plan-swiper .swiper-button-next, .related-plans-block, .btn, .post-navigation, .cta-block { display: none !important; }
Skip to main content Skip to footer content
Light blue ranch-style modular home by Wisconsin Homes with large arched front window and attached garage in Marshfield, WI.

3675 Spectrum

3 Bed
2 Bath
2,185 Sq. Ft.
Print Friendly and PDF

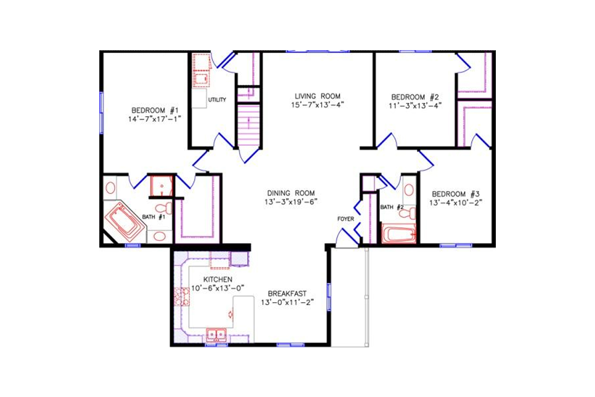
This classy ranch style home adds another dimension to living. The separate living and family areas allow your family to entertain and relax simultaneously. The expansive country kitchen is loaded with an extraordinary amount of cabinetry and is adjacent to a cozy breakfast nook. The well-sized primary bedroom comes with a private luxury bath and an immense walk-in closet. The laundry room is neatly tucked away from the main living areas and the main bath is perfectly located between the remaining bedrooms of this magnificent home.

Disclaimer: Artist rendering may include optional or upgraded features.

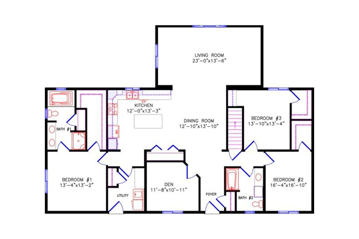
3675 Spectrum Ranch floor plan
Main Floor
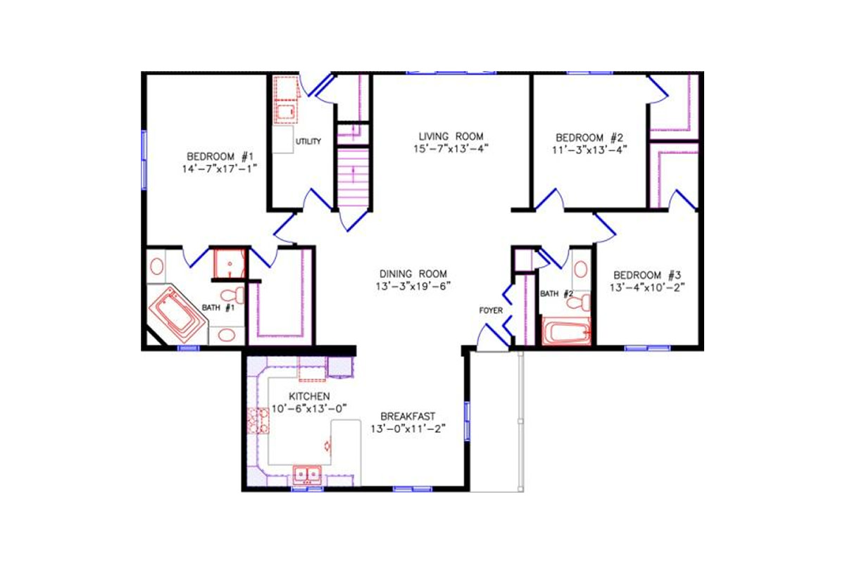
3675 Spectrum Ranch floor plan alternate 1
Alternate Plan-3640 SPECTRUM 42'x56' | 1886 Sq Ft
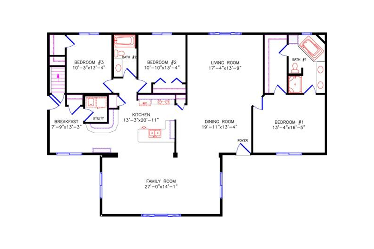
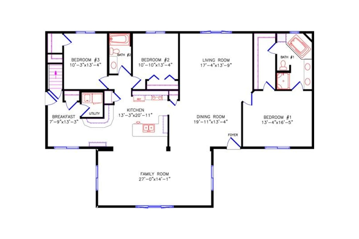
3675 Spectrum Ranch floor plan alternate 2
Alternate Plan-3676 SPECTRUM 42'x60' | 2017 Sq Ft

Plan Details

Bedrooms
3
Bathrooms
2
Main Floor Square Feet
2,185
Upper Square Feet
Total Square Feet
2,185
Main Floor Dimensions
42' X 64'
Upper Floor Dimensions
Stories
1
Style
Ranch

Customize Your Dream Home

Creating your dream home shouldn’t be complicated. At Wisconsin Homes, our Home Design Center streamlines everything, from plan selection to building options and final drawings, so you can focus on what matters: designing a home you’ll love.

Request a Free Quote

Your dream home starts with the right team. Wisconsin Homes partners with experienced builders across the Midwest who share our commitment to quality craftsmanship and customer care. Contact one of our local builders for your free quote.

Previous Plan
Next Plan

Start Your Dream Home Today

Whether you have a clear vision or you’re just starting to explore your options, we’re here to make the process easy—and even enjoyable. From personalized floor plans to trusted builders that truly care, we’ll help you build your dream home at a guaranteed factory-built price.

Connect with a Local Builder