.background-image, .breadcrumbs, .floor-plan-pill, .floor-plan-swiper-thumbnails, .floor-plan-swiper .swiper-button-prev, .floor-plan-swiper .swiper-button-next, .related-plans-block, .btn, .post-navigation, .cta-block { display: none !important; }
Skip to main content Skip to footer content
Gray Chalet-style modular home by Wisconsin Homes in Marshfield, WI with full front deck and floor-to-ceiling windows.

Modern Chalet Floor Plans

Distinctive. Stunning. Personal. Custom. This is the home you’ve been dreaming of, and our Chalets make it real. From the moment you step inside, you’ll feel a harmony between your home and the natural world outside.

Every Chalet reflects your vision and our dedication to craftsmanship. Ample windows invite sunlight and the beauty of nature into a majestic great room and signature glass-front loft, creating a sense of peace and tranquility. Every room is thoughtfully designed, offering space for family, friends and gatherings that become lasting memories. Here, your Chalet-style home is inspired, inside and out. A place that reflects who you are and the life you’ve imagined.

Find Your Builder

Filter Results

Square Footage


Bedrooms


Baths

Modern brown cabin-style home with a steep roofline, large triangular windows, a wraparound deck with black railings, and colorful flower beds surrounded by trees.

4710 Loft

2 Bed 1 Bath 1,641 Sq. Ft.
View Floor Plan
Chalet-style modular home by Wisconsin Homes in Marshfield, WI featuring log siding, large windows, and wood deck.

4721 Loft

3 Bed 2 Bath 1,826 Sq. Ft.
View Floor Plan
Wood-sided modern chalet featuring large triangular windows, a wraparound deck, brick walkways, and neatly landscaped greenery in a spacious open yard.

4725 Loft

3 Bed 3 Bath 2,027 Sq. Ft.
View Floor Plan
Rustic Chalet-style modular home by Wisconsin Homes in Marshfield, WI with natural wood siding and large front windows.

4735 Loft

3 Bed 2.5 Bath 2,025 Sq. Ft.
View Floor Plan
Gray Chalet-style modular home by Wisconsin Homes in Marshfield, WI with full front deck and floor-to-ceiling windows.

4750 Loft

4 Bed 4 Bath 3,730 Sq. Ft.
View Floor Plan
Light gray Chalet-style modular home by Wisconsin Homes in Marshfield, WI with angled roofline and flower-lined deck.

4760 Loft

3 Bed 2 Bath 2,542 Sq. Ft.
View Floor Plan
Cedar-toned Chalet-style modular home by Wisconsin Homes in Marshfield, WI with large windows and attached garage.

4765 Loft

3 Bed 3 Bath 2,818 Sq. Ft.
View Floor Plan
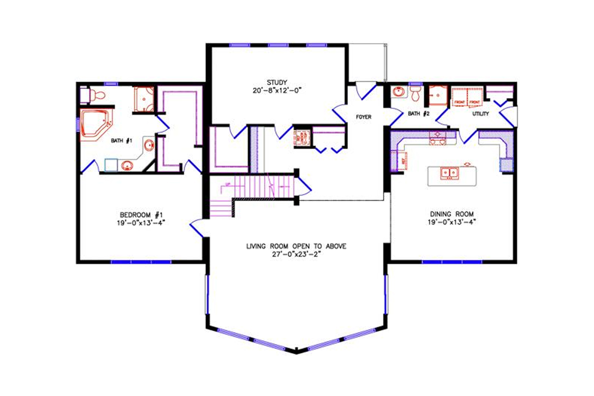
4770 Loft Chalet floor plan

4770 Loft

1 Bed 2 Bath 2,802 Sq. Ft.
View Floor Plan
Chalet style modular home with green siding and black roof built by Wisconsin Homes.

4790 Loft

3 Bed 3 Bath 2,763 Sq. Ft.
View Floor Plan
Modern black chalet-style home with sharp rooflines and large floor-to-ceiling windows, surrounded by landscaped greenery and forested background.

4795 Loft

3 Bed 3 Bath 2,292 Sq. Ft.
View Floor Plan
On-Display
Michael and Mary Jean Seelen video preview

“This house just wraps its arms around you.”

“We started with an architect, but it just wasn’t coming together. A friend suggested we look at Wisconsin Homes, and the moment we walked into a model home, we didn’t want to leave. It fit our needs almost perfectly, and when we asked for a few small changes, the updated plans and exact pricing showed up the very next day.”

– Michael and Mary Jean Seelen

View More Testimonials

Start Your Dream Home Today

Whether you have a clear vision or you’re just starting to explore your options, we’re here to make the process easy—and even enjoyable. From personalized floor plans to trusted builders that truly care, we’ll help you build your dream home at a guaranteed factory-built price.

Connect with a Local Builder