.background-image, .breadcrumbs, .floor-plan-pill, .floor-plan-swiper-thumbnails, .floor-plan-swiper .swiper-button-prev, .floor-plan-swiper .swiper-button-next, .related-plans-block, .btn, .post-navigation, .cta-block { display: none !important; }
Skip to main content Skip to footer content
Wood-sided modern chalet featuring large triangular windows, a wraparound deck, brick walkways, and neatly landscaped greenery in a spacious open yard.

4725 Loft

3 Bed
3 Bath
2,027 Sq. Ft.
Download PDF

Disclaimer: Artist rendering may include optional or upgraded features.

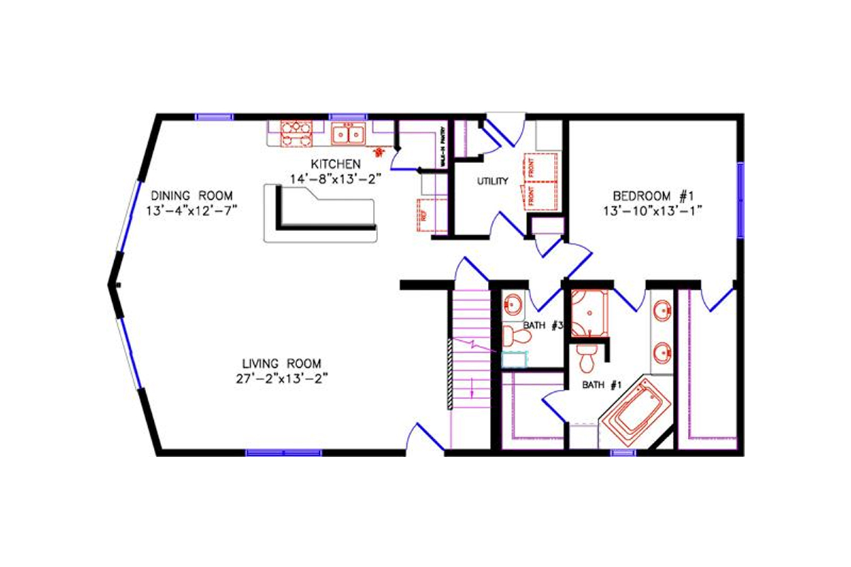
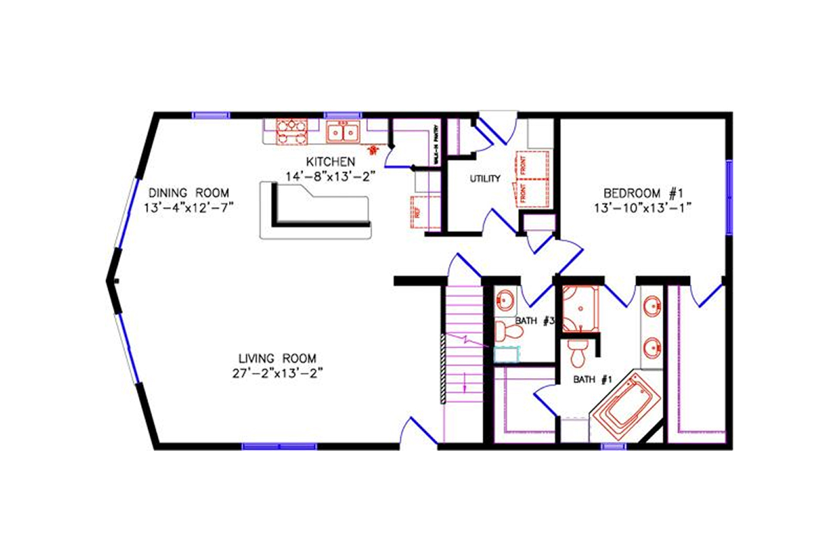
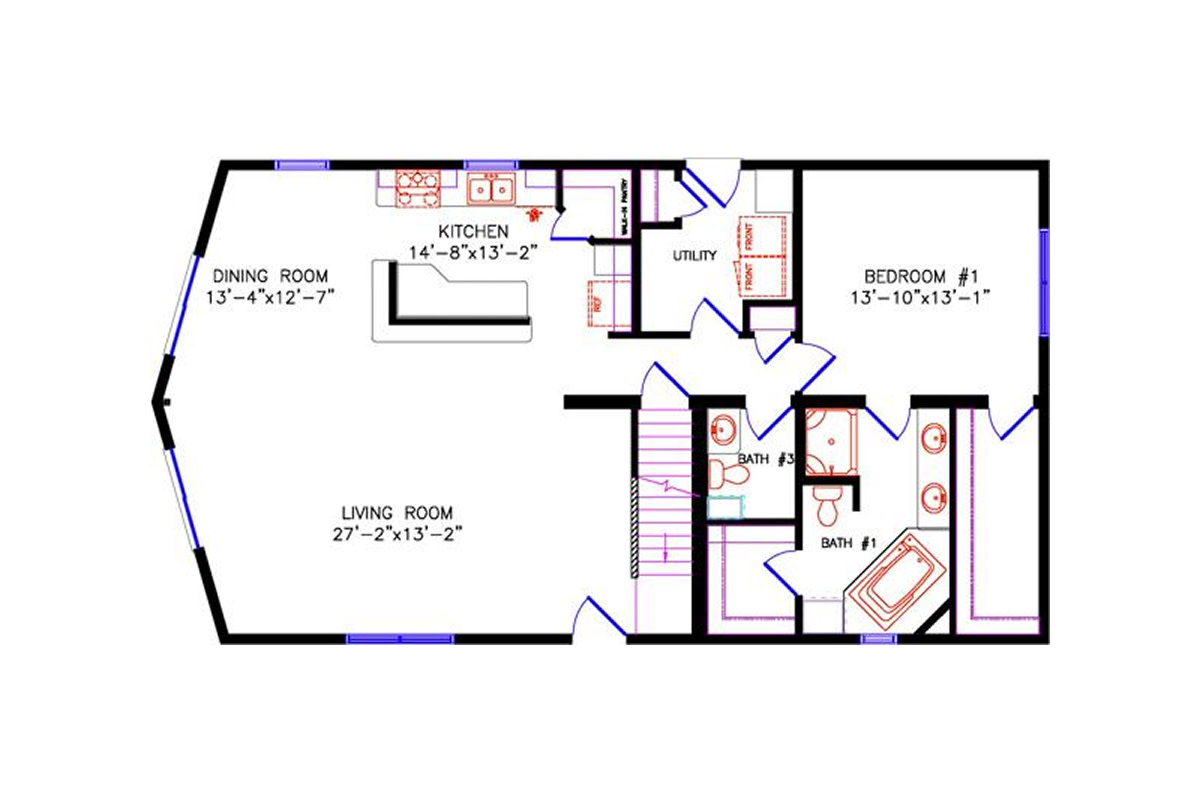
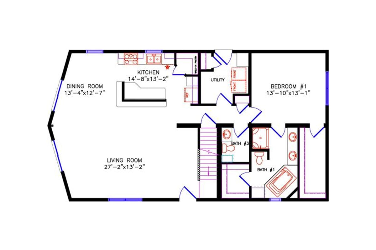
4725 Loft Chalet floor plan
Main Floor
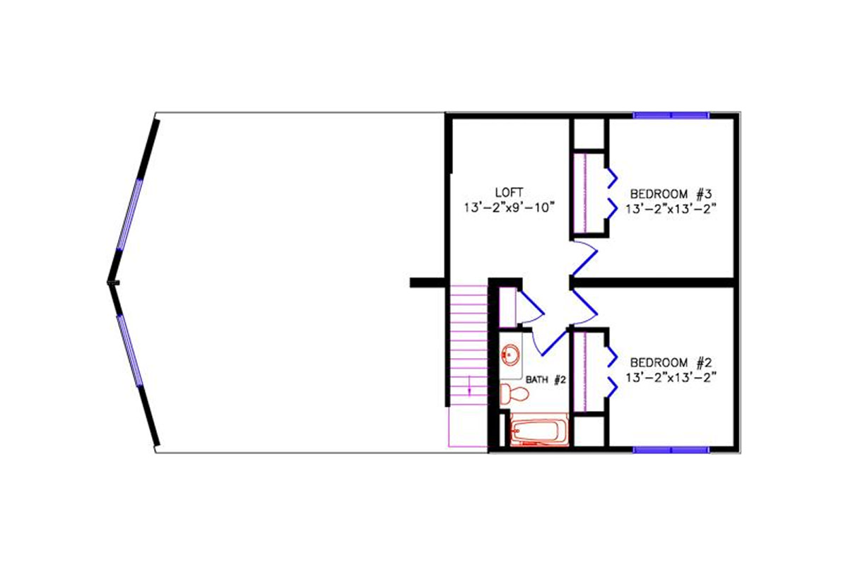
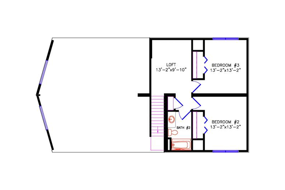
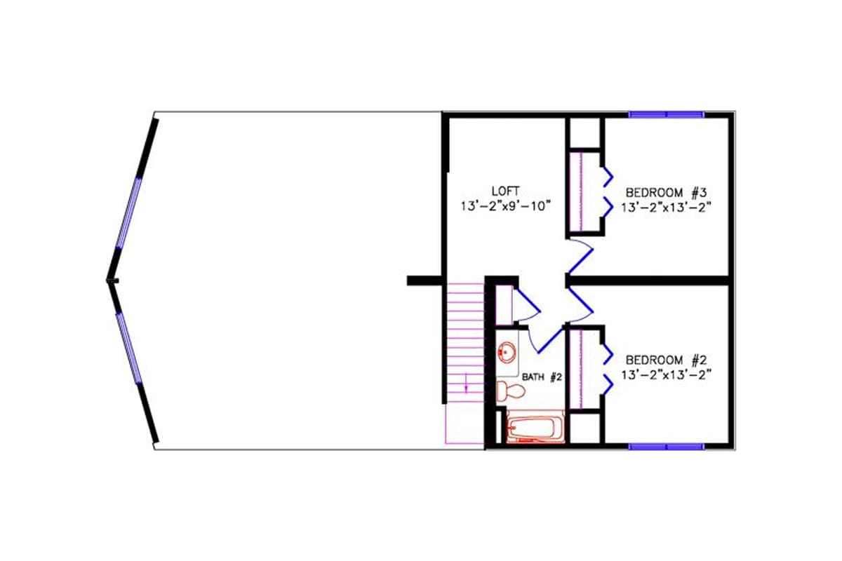
4725 Loft Chalet floor plan upper level
Upper Floor

Plan Details

Bedrooms
3
Bathrooms
3
Main Floor Square Feet
1,400
Upper Square Feet
627
Total Square Feet
2,027
Main Floor Dimensions
28' X 52'
Upper Floor Dimensions
28' X 52'
Stories
2
Style
Chalet

Customize Your Dream Home

Creating your dream home shouldn’t be complicated. At Wisconsin Homes, our Home Design Center streamlines everything, from plan selection to building options and final drawings, so you can focus on what matters: designing a home you’ll love.

Request a Free Quote

Your dream home starts with the right team. Wisconsin Homes partners with experienced builders across the Midwest who share our commitment to quality craftsmanship and customer care. Contact one of our local builders for your free quote.

Previous Plan
Next Plan

Start Your Dream Home Today

Whether you have a clear vision or you’re just starting to explore your options, we’re here to make the process easy—and even enjoyable. From personalized floor plans to trusted builders that truly care, we’ll help you build your dream home at a guaranteed factory-built price.

Connect with a Local Builder