.background-image, .breadcrumbs, .floor-plan-pill, .floor-plan-swiper-thumbnails, .floor-plan-swiper .swiper-button-prev, .floor-plan-swiper .swiper-button-next, .related-plans-block, .btn, .post-navigation, .cta-block { display: none !important; }
Skip to main content Skip to footer content
Gray Chalet-style modular home by Wisconsin Homes in Marshfield, WI with full front deck and floor-to-ceiling windows.

4750 Loft

4 Bed
4 Bath
3,730 Sq. Ft.

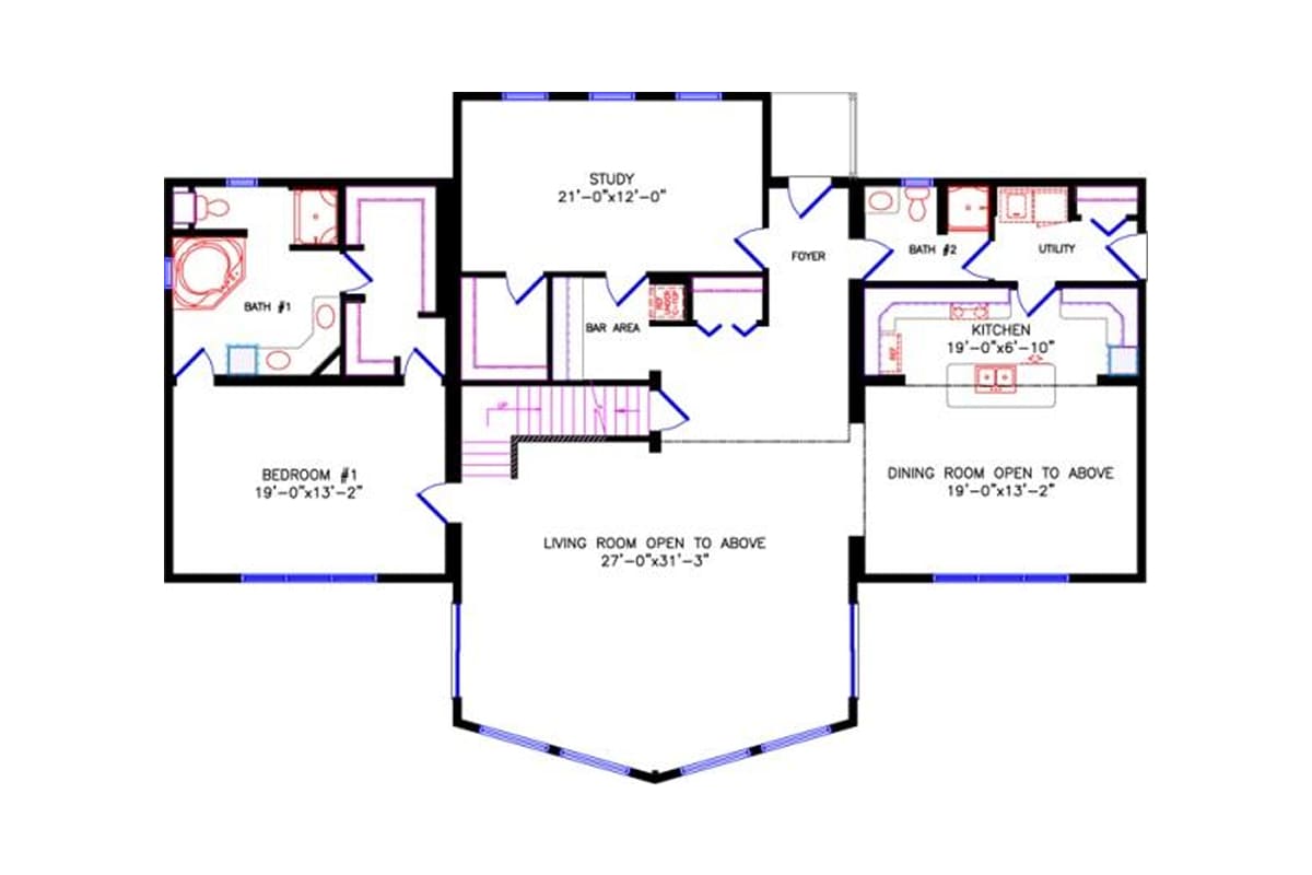
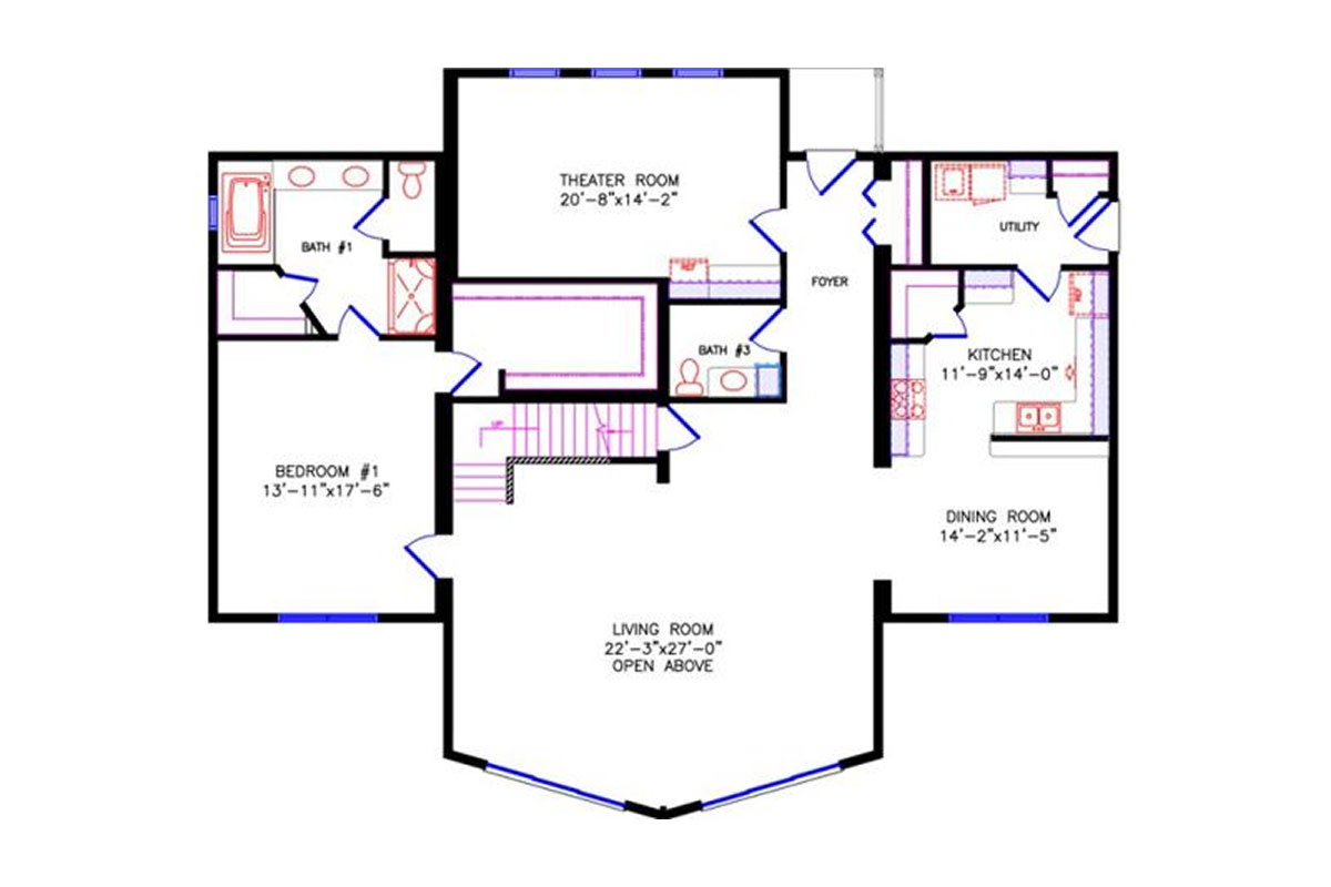
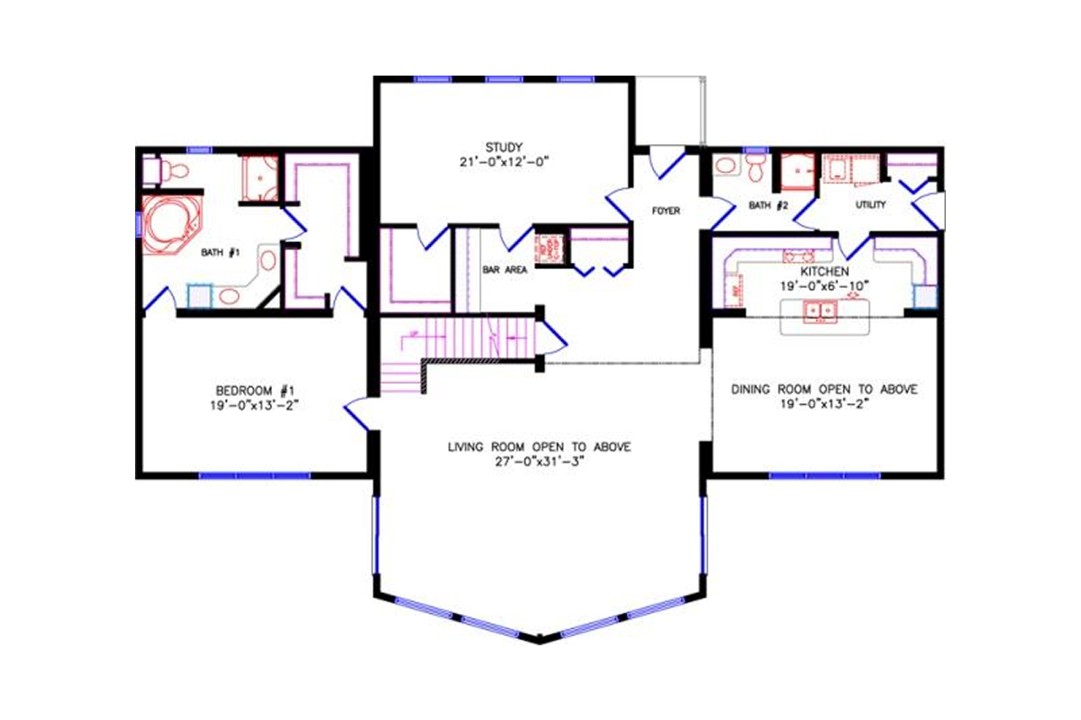
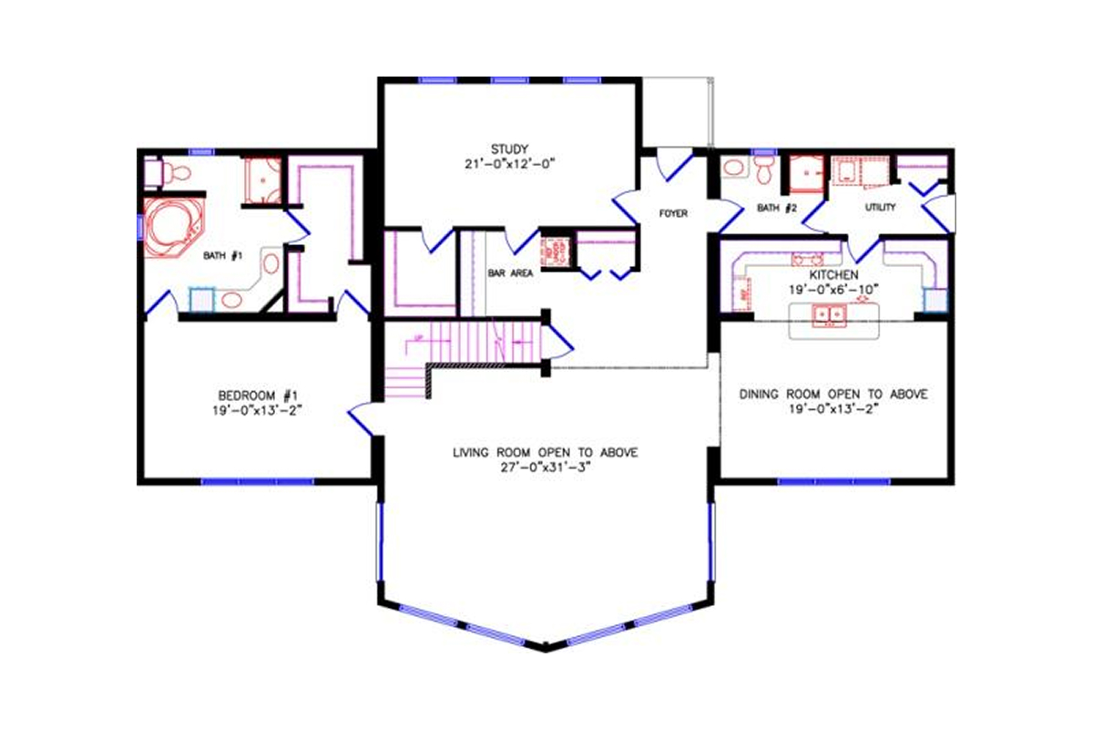
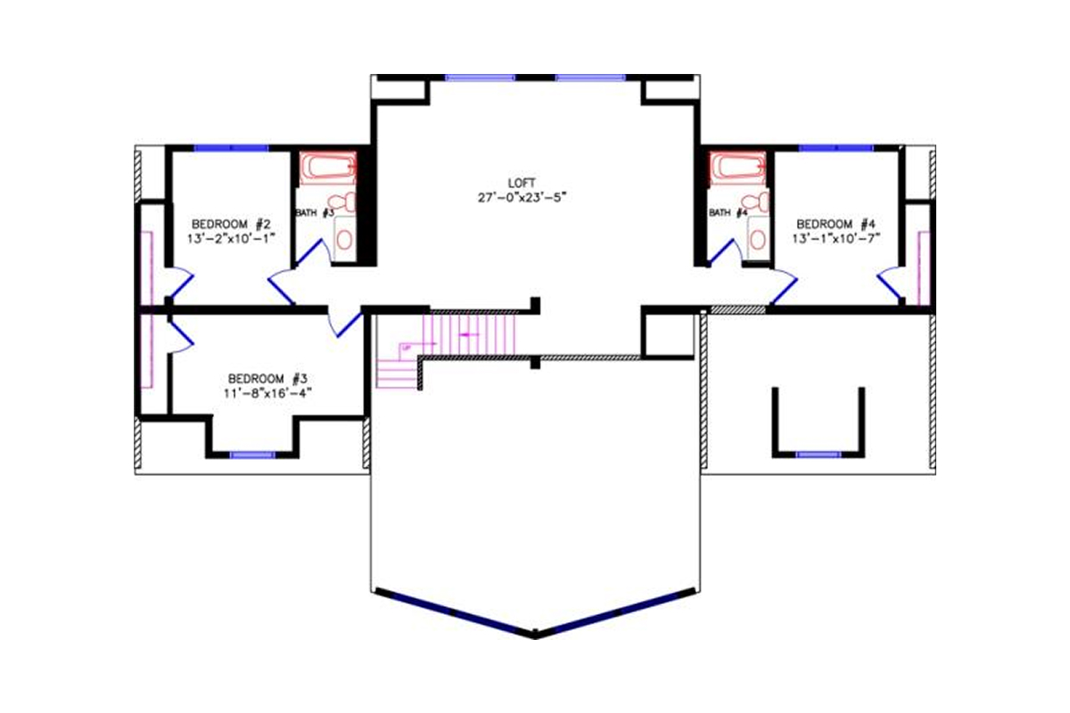
This loft is everyone’s dream. With a front view that’s nothing less than spectacular, this colossal 3,600+ sq. ft., 4 bedroom, 3.5 bath home offers an expansive and versatile study room, as well as a wet bar. The primary bedroom suite consumes 560 sq. ft. alone and has a walk-in closet large enough for any lifestyle. The front walls are mostly glass to allow you to bring the outdoors in. Showcasing the great room is a gorgeous stone fireplace that extends to the peak of the upper level. Upstairs you’ll find three bedrooms, two bathrooms and a large loft overlooking the great room. It’s absolutely beautiful.

Download PDF

Disclaimer: Artist rendering may include optional or upgraded features.

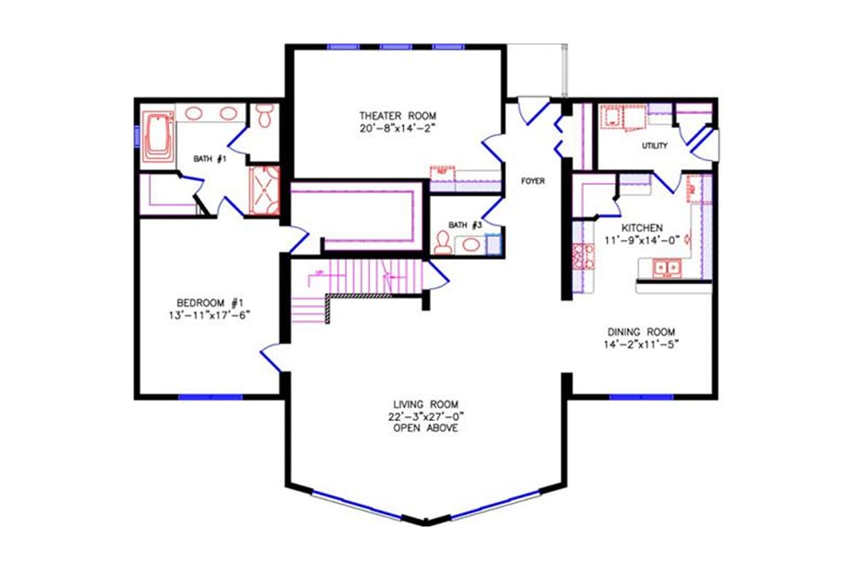
4735 Loft Chalet floor plan
Main Floor
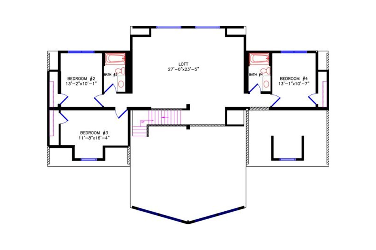
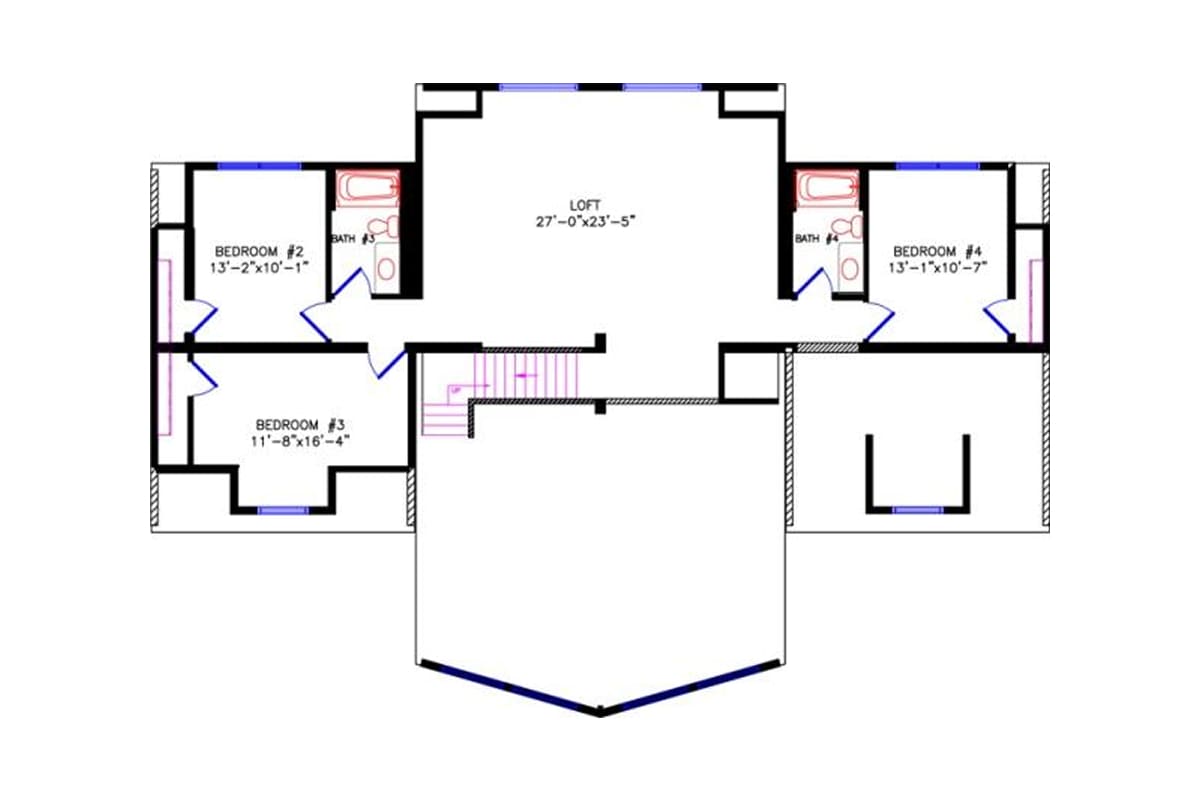
4735 Loft Chalet floor plan upper level
Upper Floor
Two-story log cabin chalet home featuring green trim, triangular windows, a wooden deck, and a landscaped front yard with shrubs and flowering plants.
Main Floor Alt. Plan-4765 LOFT 56'x48' | 2159 Sq Ft
4735 Loft Chalet floor plan upper level
Upper Level Alt. Plan-4765 LOFT 28'x48' | 1288 Sq Ft
Rustic A-frame chalet with wood siding, triangular front windows, a front deck with railings, and surrounding landscaping with shrubs and flowers.
Main Floor Alt. Plan-4760 LOFT 56'x48' | 2130 Sq Ft
Rustic A-frame chalet with wood siding, triangular front windows, a front deck with railings, and surrounding landscaping with shrubs and flowers.
Upper Level Alt. Plan-4760 LOFT 28'x48' | 1288 Sq Ft

Plan Details

Bedrooms
4
Bathrooms
4
Main Floor Square Feet
2,377
Upper Square Feet
1,353
Total Square Feet
3,730
Main Floor Dimensions
48' X 68'
Upper Floor Dimensions
48' X 68'
Stories
2
Style
Chalet

Customize Your Dream Home

Creating your dream home shouldn’t be complicated. At Wisconsin Homes, our Home Design Center streamlines everything, from plan selection to building options and final drawings, so you can focus on what matters: designing a home you’ll love.

Request a Free Quote

Your dream home starts with the right team. Wisconsin Homes partners with experienced builders across the Midwest who share our commitment to quality craftsmanship and customer care. Contact one of our local builders for your free quote.

Previous Plan
Next Plan

Start Your Dream Home Today

Whether you have a clear vision or you’re just starting to explore your options, we’re here to make the process easy—and even enjoyable. From personalized floor plans to trusted builders that truly care, we’ll help you build your dream home at a guaranteed factory-built price.

Connect with a Local Builder