.background-image, .breadcrumbs, .floor-plan-pill, .floor-plan-swiper-thumbnails, .floor-plan-swiper .swiper-button-prev, .floor-plan-swiper .swiper-button-next, .related-plans-block, .btn, .post-navigation, .cta-block { display: none !important; }
Skip to main content Skip to footer content
Cedar-toned Chalet-style modular home by Wisconsin Homes in Marshfield, WI with large windows and attached garage.

4765 Loft

3 Bed
3 Bath
2,818 Sq. Ft.

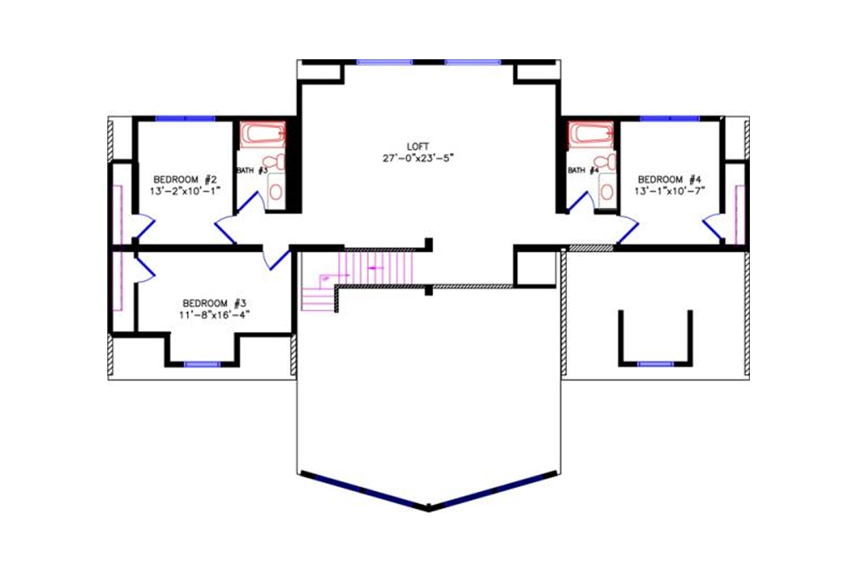
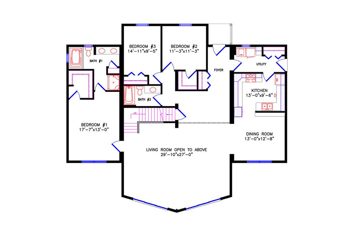
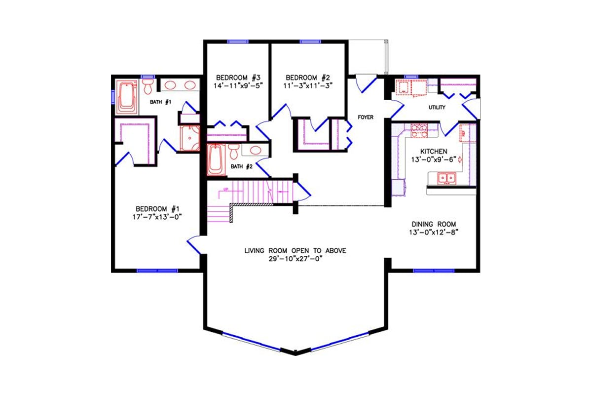
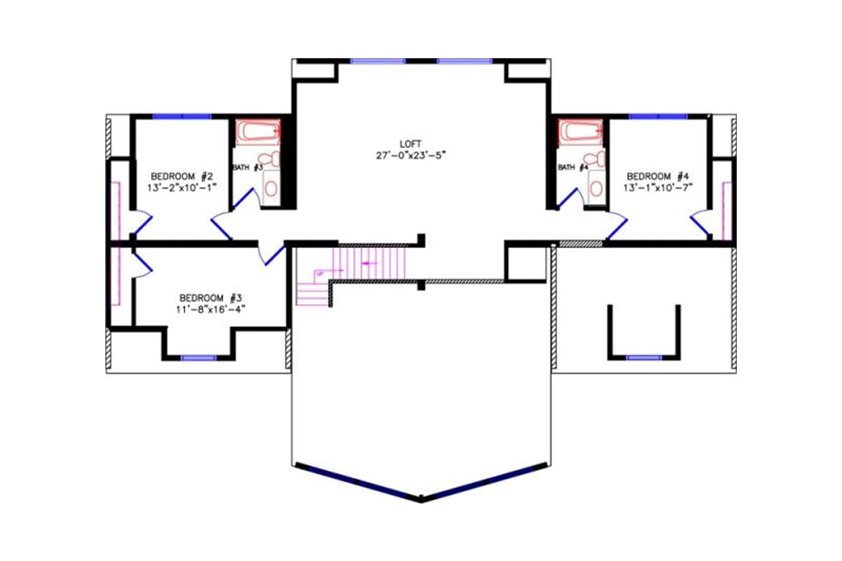
This Loft provides a large theater room and primary bedroom downstairs with a comfy loft area, two bedrooms and bath upstairs. The optional prow front in the great-room adds to the side wings for a beautiful exterior view when looking from the outside. Comfort is not compromised as the entire left wing contains a primary bedroom with walk-in closet and a bathroom complete with double sinks, a stand-up shower and soaking tub. The right wing features a kitchen with plenty of counter and cabinet space, utility room and dining area. The front walls are mostly glass which allows you to bring the outdoors into a huge great-room.

Download PDF

Disclaimer: Artist rendering may include optional or upgraded features.

4765 Loft Chalet floor plan
Main Floor
4765 Loft Chalet floor plan upper level
Upper Floor
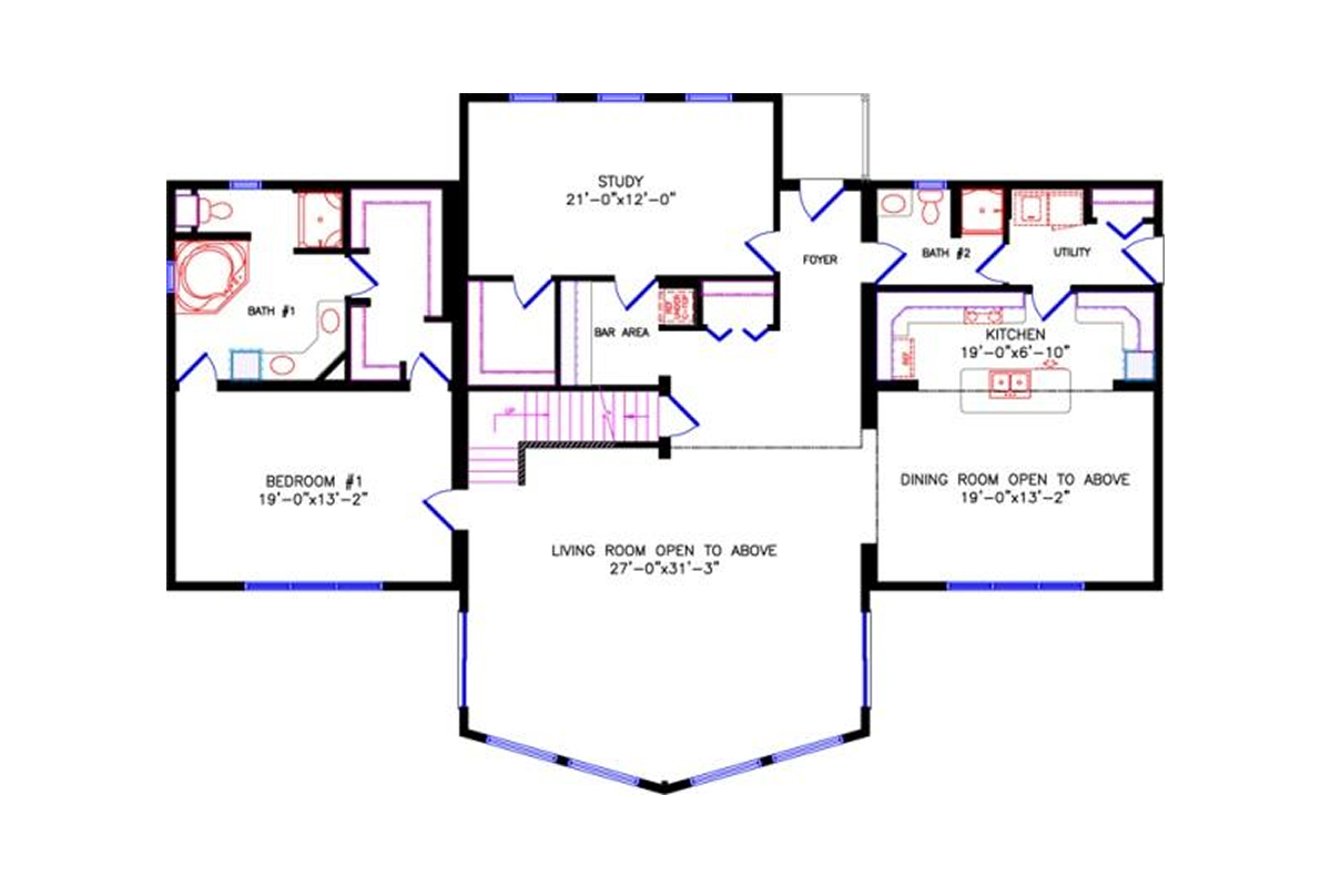
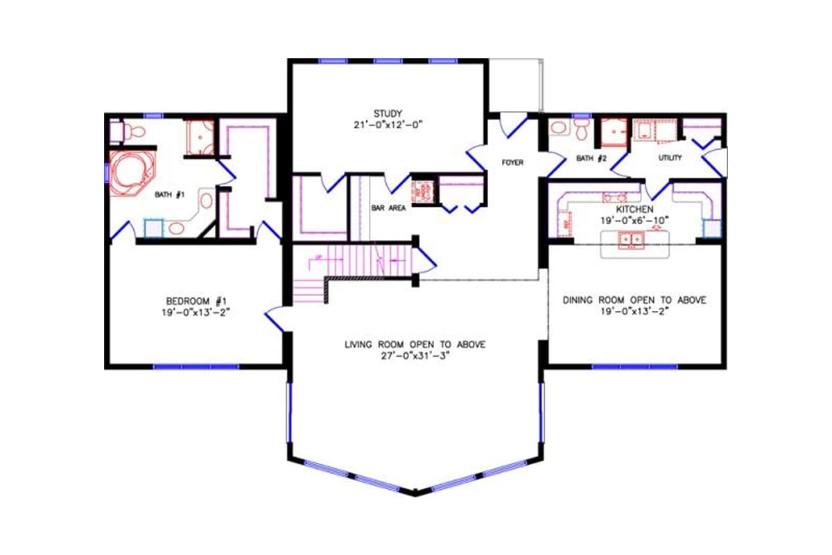
4765 Loft Chalet floor plan alternate main floor
Main Floor Alt. Plan-4750 LOFT 68'x48' | 2413 Sq Ft
4765 Loft Chalet floor plan alternate upper floor
Upper Level Alt. Plan-4750 LOFT 68'x48' | 1351 Sq Ft
4765 Loft Chalet floor plan alternate main floor
Upper Level Alt. Plan-4765 LOFT 56'x48' | 2130 Sq Ft
4765 Loft Chalet floor plan alternate upper floor
Upper Level Alt. Plan-4760 LOFT 28'x48' | 1288 Sq Ft

Virtual Tour

Plan Details

Bedrooms
3
Bathrooms
3
Main Floor Square Feet
2,159
Upper Square Feet
659
Total Square Feet
2,818
Main Floor Dimensions
58' X 48'
Upper Floor Dimensions
28' X 48'
Stories
2
Style
Chalet

Customize Your Dream Home

Creating your dream home shouldn’t be complicated. At Wisconsin Homes, our Home Design Center streamlines everything, from plan selection to building options and final drawings, so you can focus on what matters: designing a home you’ll love.

Request a Free Quote

Your dream home starts with the right team. Wisconsin Homes partners with experienced builders across the Midwest who share our commitment to quality craftsmanship and customer care. Contact one of our local builders for your free quote.

Previous Plan
Next Plan

Start Your Dream Home Today

Whether you have a clear vision or you’re just starting to explore your options, we’re here to make the process easy—and even enjoyable. From personalized floor plans to trusted builders that truly care, we’ll help you build your dream home at a guaranteed factory-built price.

Connect with a Local Builder