.background-image, .breadcrumbs, .floor-plan-pill, .floor-plan-swiper-thumbnails, .floor-plan-swiper .swiper-button-prev, .floor-plan-swiper .swiper-button-next, .related-plans-block, .btn, .post-navigation, .cta-block { display: none !important; }
Skip to main content Skip to footer content
Chalet style modular home with green siding and black roof built by Wisconsin Homes.

4790 Loft

3 Bed
3 Bath
2,763 Sq. Ft.
Print Friendly and PDF

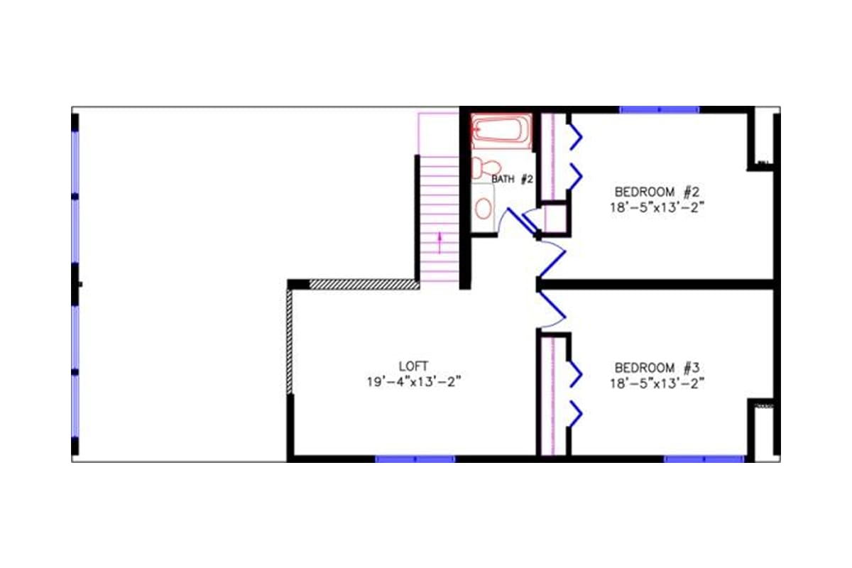
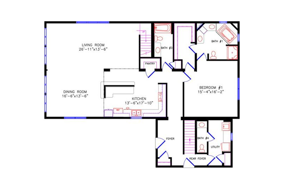
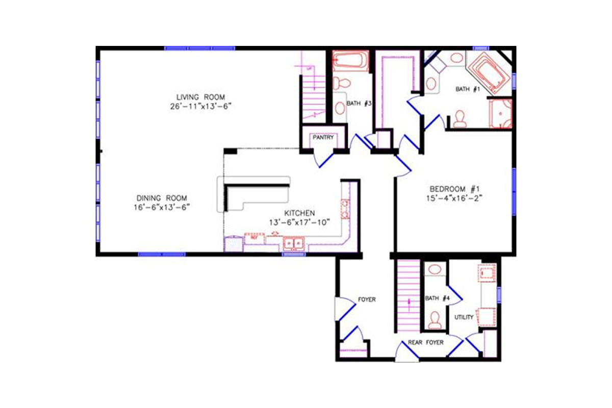
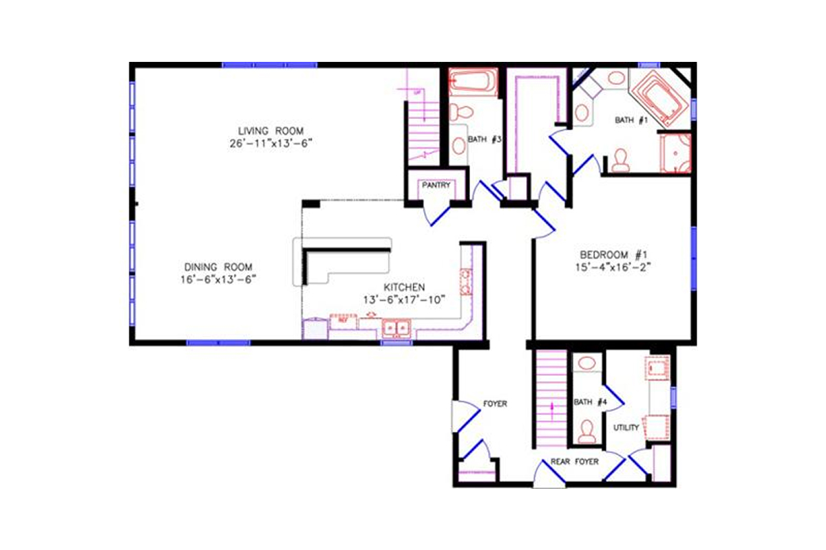
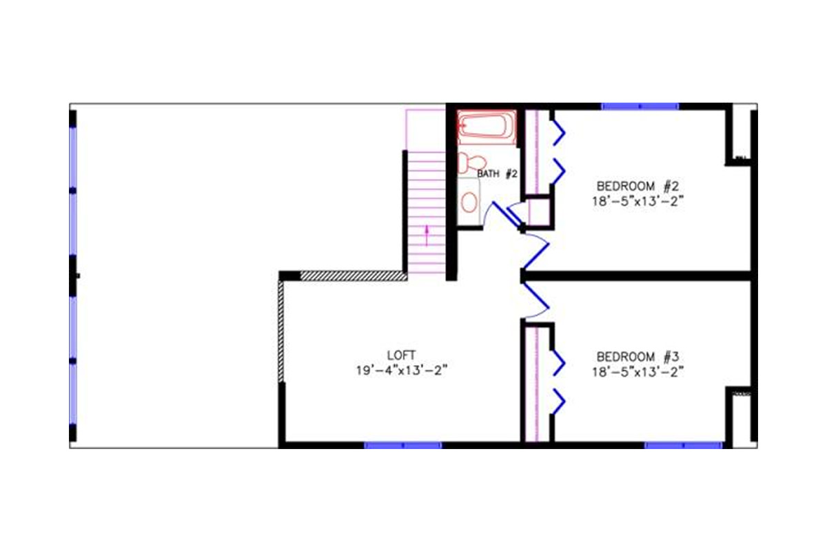
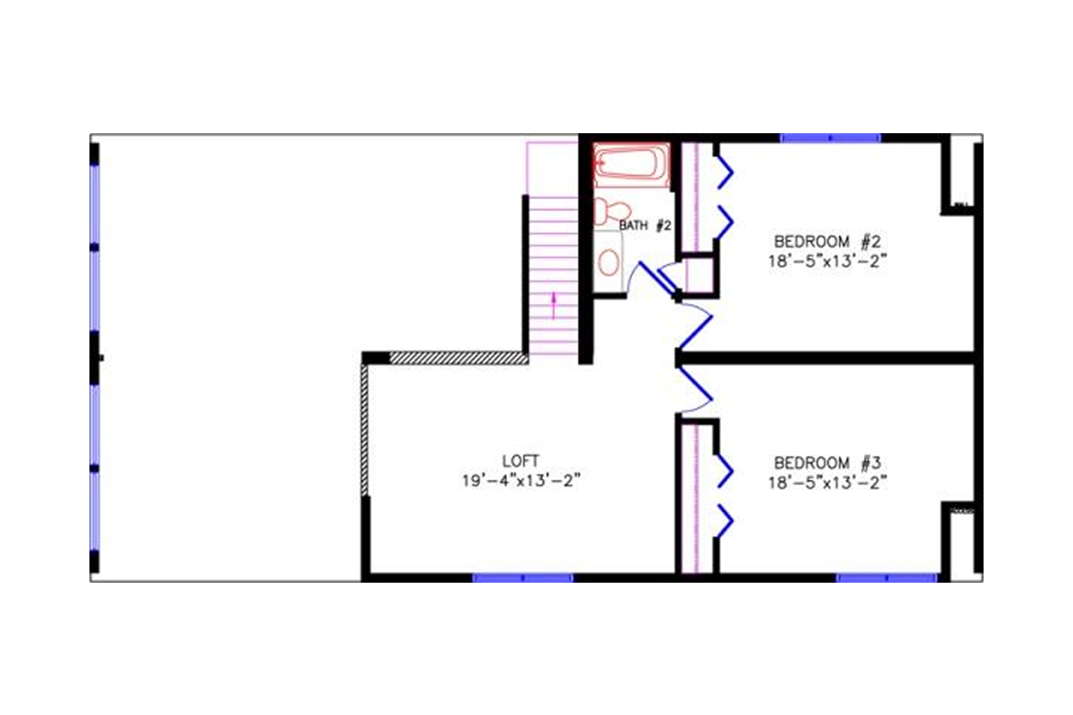
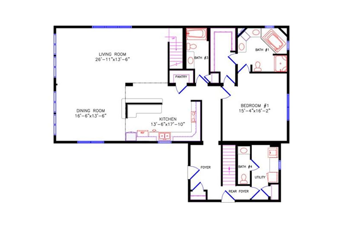
This grand and spacious home is truly a dream come true. The lower level boasts more than 1,800 square feet of living space. The primary bedroom suite is absolutely stunning with a huge walk-in closet and gorgeous bath. The isolated main-floor utility includes a half-bath. The upper level has two huge bedrooms, a full bath and a versatile, open loft area.

Disclaimer: Artist rendering may include optional or upgraded features.

4790 Loft Chalet floor plan
Main Floor
4770 Loft Chalet floor plan upper level
Upper Floor
4770 Loft Chalet floor plan upper level
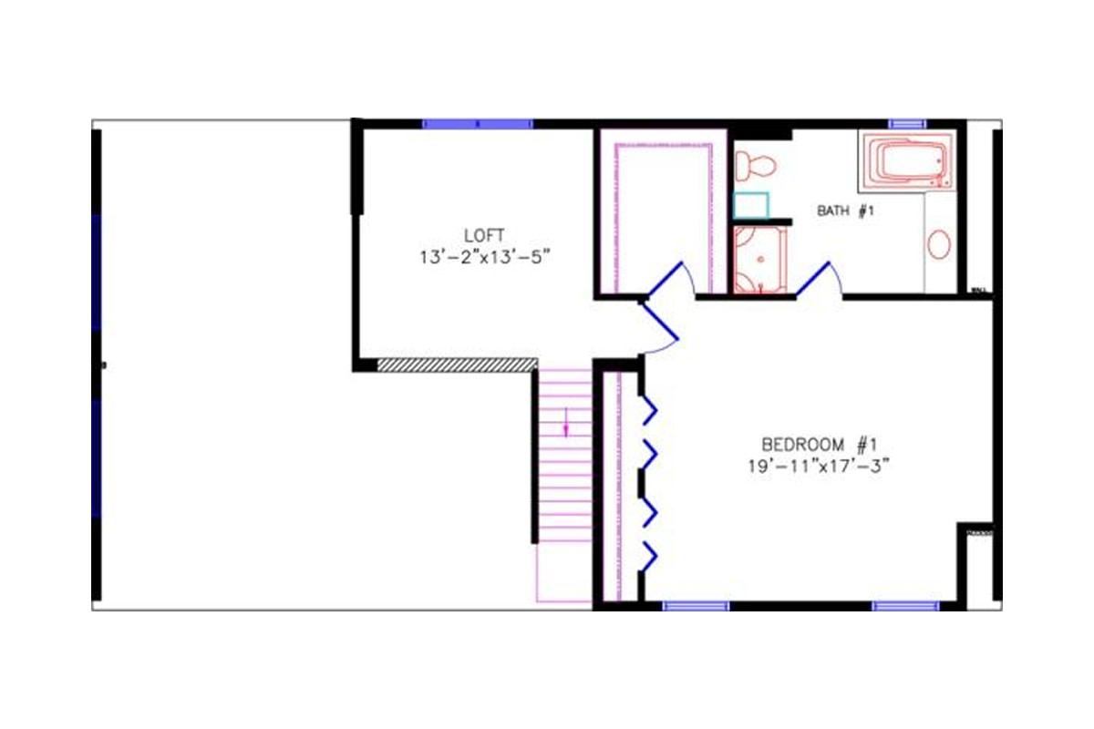
Main Floor Alt. Plan-4780 LOFT 42'x52' | 1765 Sq Ft
4770 Loft Chalet floor plan upper level
Alternate Floor Plan Upper Level Alt. Plan-4780 LOFT 28'x52' | 1456 Sq Ftn - Upper Level
4770 Loft Chalet floor plan upper level
Main Floor Alt. Plan-4781 LOFT 44'x50' | 1849 Sq Ft
4770 Loft Chalet floor plan upper level
Upper Level Alt. Plan-4781 LOFT 28'x50' | 1400 Sq Ft

Plan Details

Bedrooms
3
Bathrooms
3
Main Floor Square Feet
1,877
Upper Square Feet
886
Total Square Feet
2,763
Main Floor Dimensions
42' X 56'
Upper Floor Dimensions
28' X 56'
Stories
2
Style
Chalet

Customize Your Dream Home

Creating your dream home shouldn’t be complicated. At Wisconsin Homes, our Home Design Center streamlines everything, from plan selection to building options and final drawings, so you can focus on what matters: designing a home you’ll love.

Request a Free Quote

Your dream home starts with the right team. Wisconsin Homes partners with experienced builders across the Midwest who share our commitment to quality craftsmanship and customer care. Contact one of our local builders for your free quote.

Previous Plan
Next Plan

Start Your Dream Home Today

Whether you have a clear vision or you’re just starting to explore your options, we’re here to make the process easy—and even enjoyable. From personalized floor plans to trusted builders that truly care, we’ll help you build your dream home at a guaranteed factory-built price.

Connect with a Local Builder