.background-image, .breadcrumbs, .floor-plan-pill, .floor-plan-swiper-thumbnails, .floor-plan-swiper .swiper-button-prev, .floor-plan-swiper .swiper-button-next, .related-plans-block, .btn, .post-navigation, .cta-block { display: none !important; }
Skip to main content Skip to footer content
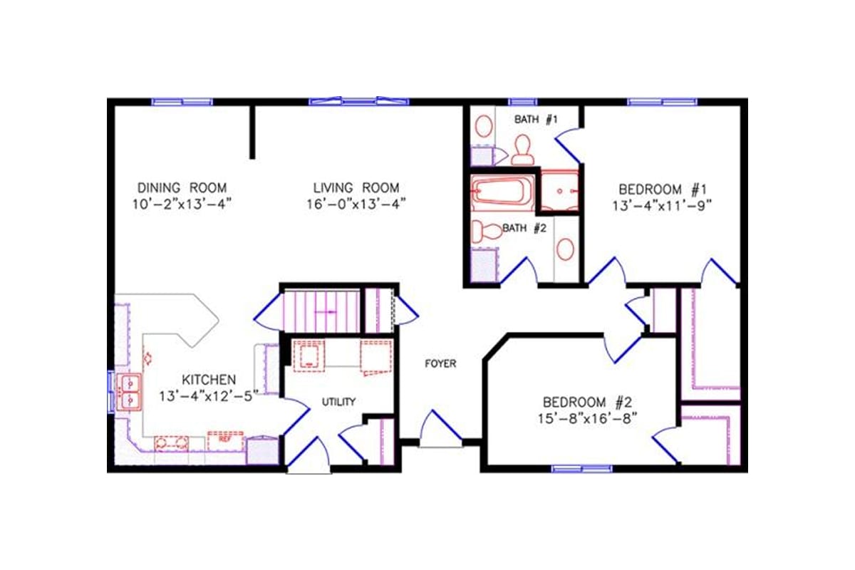
5180 Limited Ranch floor plan

5180 Limited

2 Bed
2 Bath
1,456 Sq. Ft.
Print Friendly and PDF

The attractive recessed entry of the Limited invites you into a home filled with classic charm and flow. All of the bedrooms are nestled away from the living area for maximum privacy. The primary bedroom includes its own private 3/4 bath. The first floor utility, spacious kitchen, and basement stairway are all conveniently located near the rear entry. The expansive living area is great for relaxing as well as entertaining, and several storage closets accent the home throughout.

Disclaimer: Artist rendering may include optional or upgraded features.

5180 Limited Ranch floor plan
Main Floor
5180 Limited Ranch floor plan alternate 1
Alternate Plan-2235 BROOKDALE 28'x48' | 1344 Sq Ft

Plan Details

Bedrooms
2
Bathrooms
2
Main Floor Square Feet
1,456
Upper Square Feet
Total Square Feet
1,456
Main Floor Dimensions
28' X 52'
Upper Floor Dimensions
Stories
1
Style
Ranch

Customize Your Dream Home

Creating your dream home shouldn’t be complicated. At Wisconsin Homes, our Home Design Center streamlines everything, from plan selection to building options and final drawings, so you can focus on what matters: designing a home you’ll love.

Request a Free Quote

Your dream home starts with the right team. Wisconsin Homes partners with experienced builders across the Midwest who share our commitment to quality craftsmanship and customer care. Contact one of our local builders for your free quote.

Previous Plan
Next Plan

Start Your Dream Home Today

Whether you have a clear vision or you’re just starting to explore your options, we’re here to make the process easy—and even enjoyable. From personalized floor plans to trusted builders that truly care, we’ll help you build your dream home at a guaranteed factory-built price.

Connect with a Local Builder