.background-image, .breadcrumbs, .floor-plan-pill, .floor-plan-swiper-thumbnails, .floor-plan-swiper .swiper-button-prev, .floor-plan-swiper .swiper-button-next, .related-plans-block, .btn, .post-navigation, .cta-block { display: none !important; }
Skip to main content Skip to footer content
Log cabin-style chalet modular home by Wisconsin Homes with expansive windows, green shingle roof, and a full wraparound wooden deck surrounded by trees.

Loft (Previous Display)

2 Bed
3 Bath
2,753 Sq. Ft.
Print Friendly and PDF

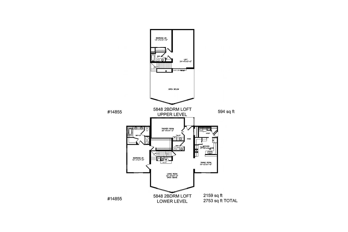
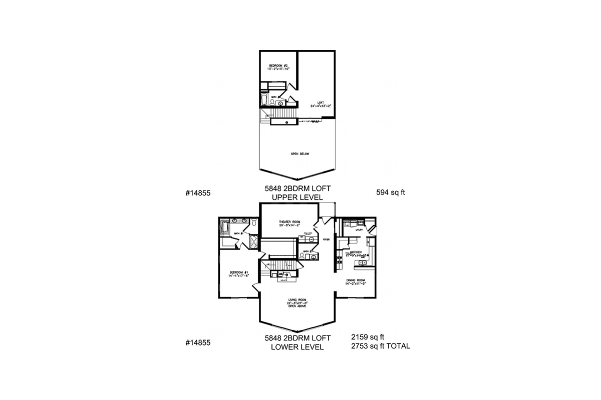
This loft provides a large theater room and primary bedroom downstairs with a comfy loft area, two bedrooms and bath upstairs. The optional prow front in the great-room adds to the side wings for a beautiful exterior view when looking from the outside. Comfort is not compromised as the entire left wing contains a primary bedroom with walk-in closet and a bathroom complete with double sinks, a stand-up shower and soaking tub. The right wing features a kitchen with plenty of counter and cabinet space, utility room and dining area. The front walls are mostly glass which allows you to bring the outdoors into a huge great-room. This home is gorgeous.

Schedule Your Tour

Virtual Tour

Plan Details

Bedrooms
2
Bathrooms
3
Main Floor Square Feet
2,159
Upper Square Feet
594
Total Square Feet
2,753
Main Floor Dimensions
58' X 48'
Upper Floor Dimensions
Stories
2
Style

All 4765 Loft Photos

Start Your Dream Home Today

Whether you have a clear vision or you’re just starting to explore your options, we’re here to make the process easy—and even enjoyable. From personalized floor plans to trusted builders that truly care, we’ll help you build your dream home at a guaranteed factory-built price.

Connect with a Local Builder